Diese Webseite verwendet Cookies, um den bestmöglichen Service zu gewährleisten. Durch die weitere Nutzung dieser Webseite stimmen Sie der Cookie-Nutzung zu.
Weiterlesen.
Akzeptieren
preferiti
IT
scegli lingua
scegli lingua
Deutsch
Italiano
English
offerta
residenziale
commerciale
chi siamo
immoreal.it
il tuo agente
comperare immobili
vendere immobile
service
Associazione Agenti Immobiliari Alto Adige
glossario immobiliare
contatto
offerta
immobile
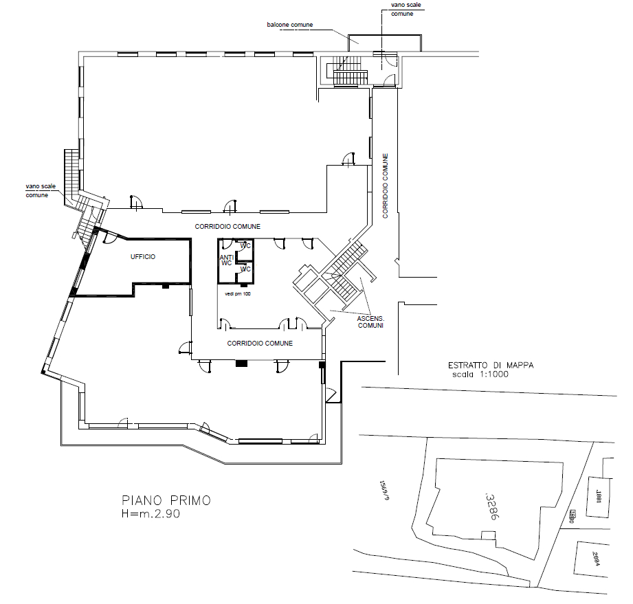
Ufficio in via Maso della Pieve in vendita
Bolzano
Oltrisarco
125.000 €
Indietro
memorizza
raccomanda
Richiesta
visualizza 18 foto
59.00
1
Piante
informazioni generali
Riferimento:
5397
Contratto:
acquisto
Proprietà:
Uffici / Studi professionali (Spazio ufficio)
Piano:
1
Totale piani:
1
ascensore:
sì
Prezzo di acquisto:
125.000,00 €
Spese condominiali al mese:
150,00 €
Provvigione più IVA:
3% + MwSt.
Superfici e caratteristiche
Superficie utile:
52,50 m²
Superficie di vendita:
59,00 m²
Stanze:
1
WC separati:
2
Posti auto:
2
Efficenza energetica
anno di costruzione:
1992
fonte di energia:
gas
classe energetica:
F
consumo di energia:
155.45 kWh/(m²*a)
Indietro
memorizza
raccomanda
Richiesta
Descrizione:
L'ufficio si trova al 1° piano ed è composto da un grande open space.
I bagni sono in comune e si trovano all’esterno dell'ufficio.
Il primo piano è accessibile anche tramite ascensore.
Categoria catastale: A/10.
La superficie netta è di circa 52,5 metri quadrati.
È possibile acquistare anche un posto auto al piano interrato oppure nelle immediate vicinanze.
Posizione:
La posizione dell'edificio in cui si trova l'ufficio può essere considerata molto buona.
Il complesso multifunzionale del Trading Center si trova in posizione strategica nelle immediate vicinanze della zona industriale e dell'autostrada.
Nelle immediate vicinanze si trovano una fermata dell'autobus e una pista ciclabile.
Al piano terra si trovano anche un bar e una farmacia.
Di fronte all'edificio si trova un ampio parcheggio pubblico.
Persona di contatto
Agenzia:
Immobilien Niederkofler Bozen/Gardasee
Nome:
Dr. Octavia Niederkofler
Via:
Südtirolerstraße 30
Luogo:
39100 Bozen
Telefono:
00393406814487
Mail:
octavia@immobil-niederkofler.it
Contatta l'agente
Prenota una visita