Diese Webseite verwendet Cookies, um den bestmöglichen Service zu gewährleisten. Durch die weitere Nutzung dieser Webseite stimmen Sie der Cookie-Nutzung zu.
Weiterlesen.
Akzeptieren
Favorites
EN
choose language
choose language
Deutsch
Italiano
English
listings
residential
commercial
about
immoreal.it
your broker
buy property
sell property
service
Südtiroler Maklervereinigung
good to know
contact us
listings
singleview
Office in Pfarrhofstraße for sale
Bolzano
Oltrisarco
125.000 €
Back
bookmark
recommend
Request
show 18 images
59.00
1
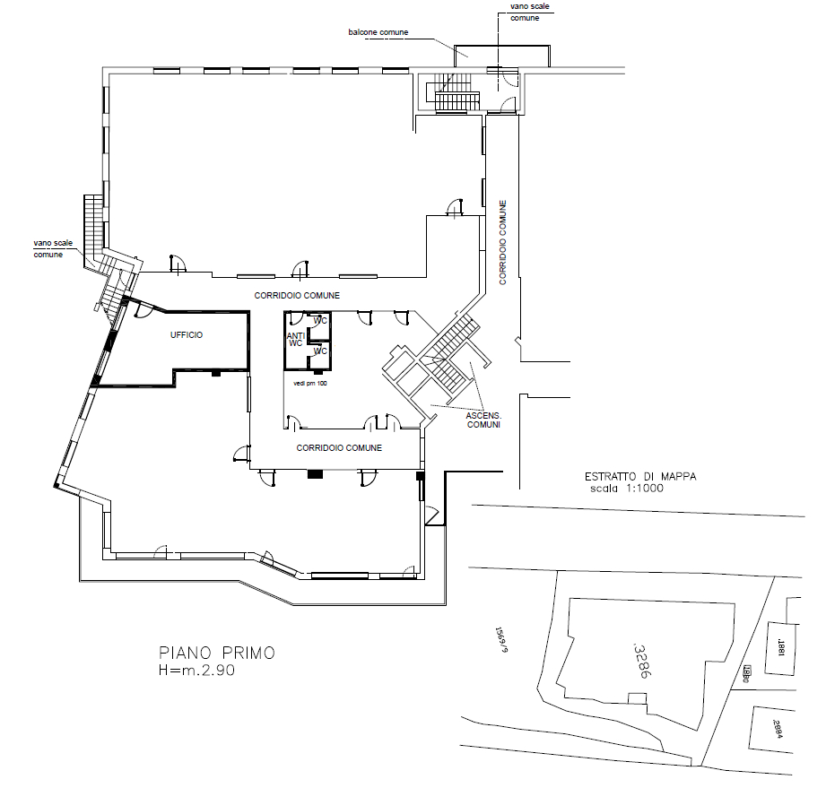
Floor plan
general
object number external:
5397
marketing method:
purchase
property:
Office / practices (office space)
floor:
1
amount of floors:
1
elevator:
yes
purchase price:
125.000,00 €
house money:
150,00 €
broker's fee plus VAT:
3% + MwSt.
Areas and amenities
Floor space:
52,50 m²
Sales space:
59,00 m²
Number of Rooms:
1
Number of sep. bathrooms:
2
number of parking spaces:
2
Energetic efficiency
construction year:
1992
energy source:
gas
energy class:
F
energy consumption value:
155.45 kWh/(m²*a)
Back
bookmark
recommend
Request
Description:
The office is located on the 1st floor and consists of a big open space.
The restrooms are privat and located outside the office.
The first floor is also accessible by lift.
The net area is approximately 52,5 square metres.
You may also be able to purchase a parking space.
Location:
The location of the building in which the office is located can be considered as very good.
The multifunctional Trading Center complex is strategically located in the immediate vicinity of the industrial zone and the motorway.
There is a bus stop in the immediate vicinity and a bicycle path.
On the ground floor there is also a bar and a pharmacy.
In front of the building there is a spacious public parking lot.
Contact person
Company:
Immobilien Niederkofler Bozen/Gardasee
Name:
Dr. Octavia Niederkofler
Street:
Südtirolerstraße 30
Place:
39100 Bozen
Phone:
00393406814487
Email:
octavia@immobil-niederkofler.it
Direct message
Request local inspection