Diese Webseite verwendet Cookies, um den bestmöglichen Service zu gewährleisten. Durch die weitere Nutzung dieser Webseite stimmen Sie der Cookie-Nutzung zu.
Weiterlesen.
Akzeptieren
Merkliste
DE
▾
Sprache wählen
Sprache wählen
Deutsch
Italiano
English
☰
✕
Immobilien
▾
Wohnen
Gewerbe
Über uns
▾
Über IMMOREAL.IT
Ihr Immobilienmakler
Immobilie kaufen
Immobilie verkaufen
Service
▾
Südtiroler Maklervereinigung
Immobilien-ABC
Kontakt
Immobilien
Einzelansicht
Bürolokal in der Pfarrhofstraße zu verkaufen
Bozen
Oberau
125.000 €
Zurück
Merkzettel
Empfehlen
Anfragen
7 Fotos anzeigen
59.00
1
Grundrisse
allgemeine Informationen
Immobiliennr.:
5397
Vermarktungsart:
Kauf
Immobilienart:
Büro/Praxen (Bürofläche)
Etage:
1
Gesamtetagen:
1
Fahrstuhl:
Ja
Kaufpreis:
125.000,00 €
Hausgeld/Monat:
150,00 €
Provision zzgl. MwSt.:
3% + MwSt.
Flächen und Ausstattung
Nutzfläche:
52,50 m²
Verkaufsfläche:
59,00 m²
Zimmer:
1
sep. WC:
2
Stellplätze:
2
Energieeffizienz
Baujahr:
1992
Energiequelle:
Gas
Energieklasse:
F
Energieverbrauch:
155.45 kWh/(m²*a)
Zurück
Merkzettel
Empfehlen
Anfragen
Objektbeschreibung:
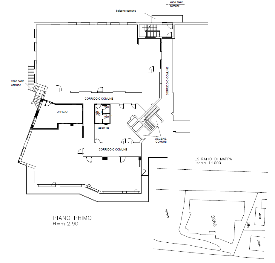
Das Büro befindet sich im 1. Stock und besteht aus einem großen open space.
Die zwei Toiletten sind privat und befinden sich außerhalb des Büros.
Der erste Stock ist auch mit dem Aufzug erreichbar.
Katasterkategorie: A/10.
Die Nettofläche beträgt etwa 52,5 Quadratmeter.
Im Untergeschoss können Sie eventuell auch einen Stellplatz kaufen oder einen Stellplatz in unmittelbarer Nähe.
Lage:
Die Lage des Gebäudes, in welchem sich das Büro befindet, kann als sehr gut betrachtet werden.
Der multifunktionale Komplex Trading Center liegt strategisch günstig in unmittelbarer Nähe der Industriezone und der Autobahn.
Es gibt eine Bushaltestelle in unmittelbarer Nähe und einen Fahrradweg.
Im Erdgeschoss befinden sich zudem eine Bar und eine Apotheke.
Vor dem Gebäude befindet sich ein großzügiger öffentlicher Parkplatz.
Kontaktperson
Firma:
Immobilien Niederkofler Bozen/Gardasee
Name:
Dr. Octavia Niederkofler
Straße:
Südtirolerstraße 30
Ort:
39100 Bozen
Telefon:
00393406814487
E-Mail:
octavia@immobil-niederkofler.it
Mitteilung senden
Eine Besichtigung vormerken