Diese Webseite verwendet Cookies, um den bestmöglichen Service zu gewährleisten. Durch die weitere Nutzung dieser Webseite stimmen Sie der Cookie-Nutzung zu.
Weiterlesen.
Akzeptieren
preferiti
IT
scegli lingua
scegli lingua
Deutsch
Italiano
English
offerta
residenziale
commerciale
chi siamo
immoreal.it
il tuo agente
comperare immobili
vendere immobile
service
Associazione Agenti Immobiliari Alto Adige
glossario immobiliare
contatto
offerta
immobile
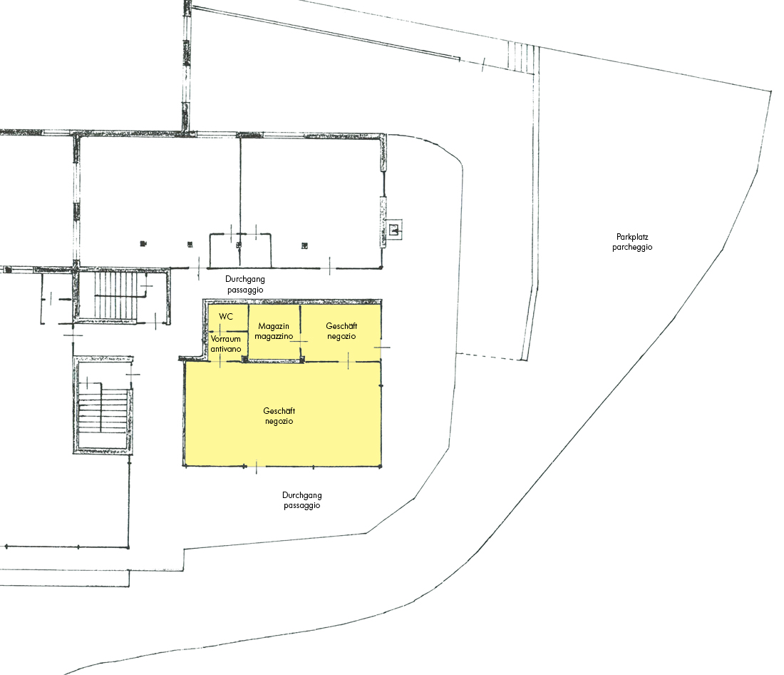
Negozio con ottima visibilitá
Varna
centro paese
250.000 €
Indietro
memorizza
raccomanda
Richiesta
visualizza 8 foto
125.00
Piante
informazioni generali
Riferimento:
12385
Contratto:
acquisto
Proprietà:
Commercio al dettaglio (Locale commerciale)
ascensore:
no
Prezzo di acquisto:
250.000,00 €
Superfici e caratteristiche
Superficie utile:
100,00 m²
Superficie di vendita:
125,00 m²
WC separati:
1
Efficenza energetica
fonte di energia:
teleriscaldamento
classe energetica:
G
Indietro
memorizza
raccomanda
Richiesta
Descrizione:
Negozio affittato con ottima visibilitá dalla strada dotato di magazzino, WC e parcheggio adiacente. Ottimo Investimento con 5% di rendita.
Persona di contatto
Agenzia:
Castellanum Srl
Nome:
Castellanum Brixen - Bressanone
Via:
Via Tratten 7
Luogo:
39042 Bressanone
Telefono:
00390472201250
Fax:
00390472201242
Mail:
brixen@castellanum.it
Website:
www.castellanum.it
Contatta l'agente
Prenota una visita