Business premises with good visibility

Varnatown center
250.000 €

general

object number external:
12385
marketing method:
purchase
property:
retail trade (commercial property)
elevator:
no
purchase price:
250.000,00 €

Areas and amenities

Floor space:
100,00 m²
Sales space:
125,00 m²
Number of sep. bathrooms:
1

Energetic efficiency

energy source:
district heating
energy class:
G
Description:
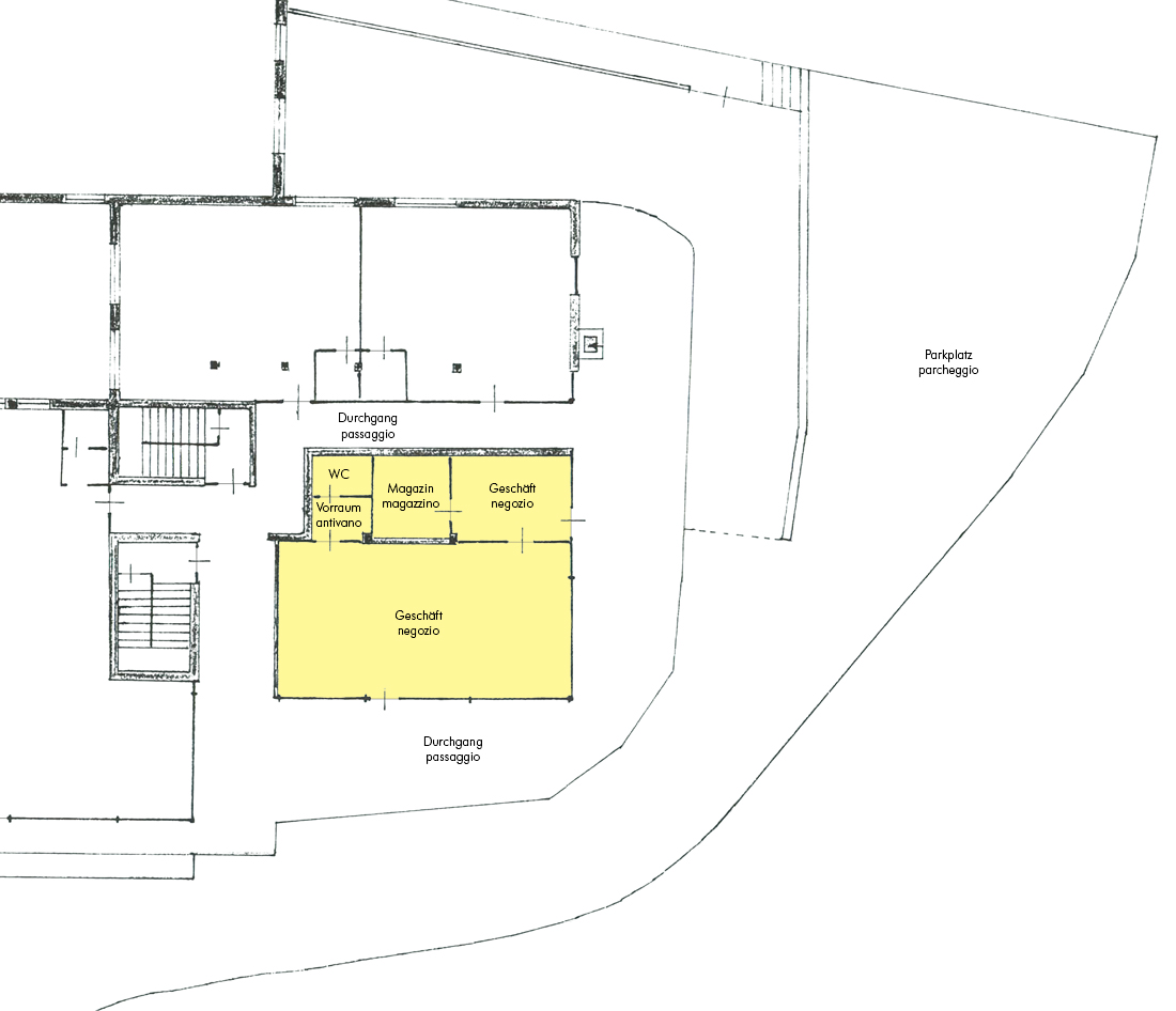
Highly visible, rented business premises directly on the street, with storage room, WC and ample parking space.
Ideal investment property with 3.6 % gross yield.

Contact person

Company:
Castellanum Srl
Name:
Castellanum Brixen - Bressanone 
Street:
Via Tratten 7
Place:
39042 Bressanone
Phone:
00390472201250
Fax number:
00390472201242
Email:
brixen@castellanum.it
Website:
www.castellanum.it
Kontaktperson
Direct message