Geschäftslokal mit guter Sichtbarkeit

LanaLana
125.000 €

allgemeine Informationen

Immobiliennr.:
M023
Vermarktungsart:
Kauf
Immobilienart:
Büro/Praxen
Fahrstuhl:
Nein
Kaufpreis:
125.000,00 €

Flächen und Ausstattung

Gesamtfläche:
54,00 m²
Zimmer:
1
sep. WC:
1

Energieeffizienz

Baujahr:
2001
Zustand:
Gepflegt
Energiequelle:
Gas
Heizung:
Zentralheizung
Energieklasse:
Legge90E
Objektbeschreibung:

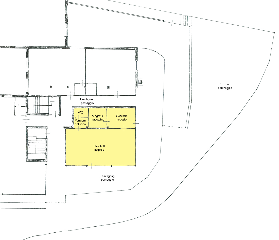
Mit einer Gesamtfläche von 54 Quadratmetern bietet dieses Geschäftslokal ausreichend Platz für den Einzelhandel, ein Büro oder für andere gewerbliche Zwecke.

Das Lokal befindet sich im Erdgeschoss eines zum Großteil gewerblichen Gebäudes in Oberlana. Gut angebunden an die Schnellstraße Mebo und direkt an der Hauptstraße, welche zum Dorfkern führt. 

Eine der besonderen Merkmale des Lokals ist die Glasfront, die sich über die gesamte Breite erstreckt. Diese sorgt nicht nur für eine helle und einladende Atmosphäre, sondern ermöglicht auch potenziellen Kunden einen guten Einblick in das Geschäft und die ausgestellten Waren. 

Weiteres finden sich direkt am Gebäude ausreichend Kundenparkplätze, was den Zugang erleichtert und den Kunden ein angenehmes Einkaufserlebnis bietet. 

Insgesamt ist das Geschäftslokal in Lana, Lananord, ein gut gelegenes und ansprechendes Geschäftslokal.

Verkaufsfläche: ca. 54,00 m²
Energieklasse: E
Zustand: Gut
Stockwerk: Erdgeschoss
Aufzug: Nein
Baujahr: 2001
Heizung/Klima: Zentralisiert
Stellplätze: Ja
Verfügbarkeit: Ab sofort
Kond. Spesen: ca. € 50/Monat
Kaufpreis: € 125.000,00
 



(Ref. M023)
Mitteilung senden