Loft a maia alta

MeranoMerano
440.000 €

informazioni generali

Riferimento:
1955
Contratto:
acquisto
Proprietà:
appartamento
ascensore:
solo per residenti:
no
Prezzo di acquisto:
440.000,00 €
Provvigione più IVA:
4% + IVA

Superfici e caratteristiche

Superficie abitabile:
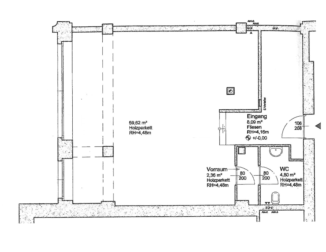
75,00 m²
Stanze:
1
Bagni:
1
Posti auto:
1

Efficenza energetica

fonte di energia:
gas
Descrizione:
Vendiamo un luminoso loft in una splendida villa in stile Liberty del 1900. L’ampia zona giorno e notte colpisce per l’impressionante altezza del soffitto di 4,5 metri, creando un’esperienza abitativa unica.

Distribuzione dell’immobile:
Piano terra: Ingresso, cucina a vista e zona giorno/notte e bagno, accessibile tramite due gradini.

È possibile acquistare un garage.

L’immobile può essere utilizzato anche come ufficio.

Un ascensore è presente per un maggiore comfort.
Alcune delle immagini sono renderings.
Posizione:
L’immobile si trova in Via Cavour, sotto Piazza Fontana.
Altre informazioni:
Tutte le informazioni sono indicative e possono essere soggette a modifiche.

Persona di contatto

Agenzia:
Benedetti Real Service | Christie's International Real Estate
Nome:
Sophia Biasi 
Via:
Via Leonardo da Vinci Strasse 9
Luogo:
39012 Merano
Telefono:
00390473236613
Fax:
00390473231296
Mail:
bs@irs-benedetti.com
Website:
www.irs-benedetti.com
Contatta l'agente