Loft in obermais

MeranoMerano
440.000 €

general

object number external:
1955
marketing method:
purchase
property:
flat
elevator:
yes
reserved for residents:
no
purchase price:
440.000,00 €
broker's fee plus VAT:
4% + VAT

Areas and amenities

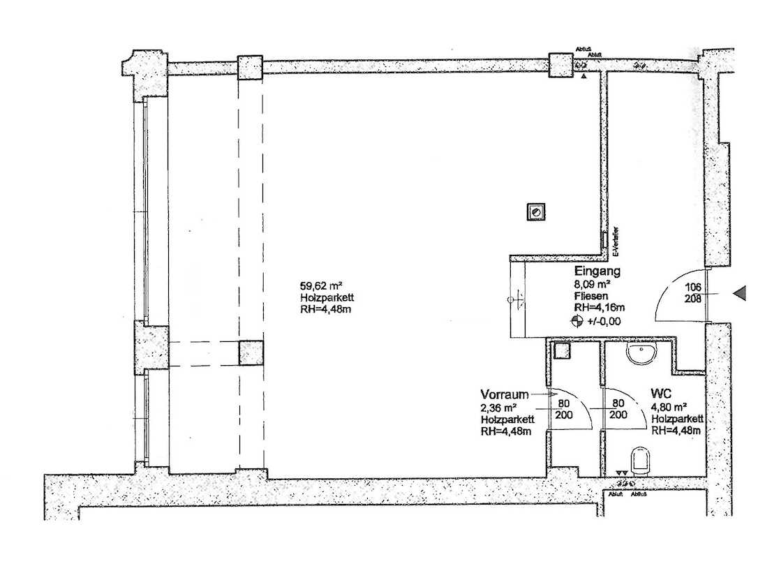
living space:
75,00 m²
Number of Rooms:
1
Number of bathrooms:
1
number of parking spaces:
1

Energetic efficiency

energy source:
gas
Description:
We are selling out a bright loft in a beautiful Art Nouveau villa from the year 1900. The spacious living and sleeping area impresses with an impressive ceiling height of 4.5 meters, creating a unique living experience.

Property layout:
Ground floor: Entrance area, open kitchen and living/sleeping area and bathroom are accessible via two steps.

It is possible to purchase a garage.

The property can also be used as an office.

An elevator is available for added convenience.

Some of the images are renderings.
Location:
The property is located on Cavour Street, below Brunnenplatz.
Other information:
All information is indicative and subject to change.

Contact person

Company:
Benedetti Real Service | Christie's International Real Estate
Name:
Sophia Biasi 
Street:
Via Leonardo da Vinci Strasse 9
Place:
39012 Merano
Phone:
00390473236613
Fax number:
00390473231296
Email:
bs@irs-benedetti.com
Website:
www.irs-benedetti.com
Direct message