Loft mit gestaltungspotenzial in obermais

MeranMeran
440.000 €

allgemeine Informationen

Immobiliennr.:
1955
Vermarktungsart:
Kauf
Immobilienart:
Wohnung
Fahrstuhl:
Ja
nur für Ansässige:
Nein
Kaufpreis:
440.000,00 €
Provision zzgl. MwSt.:
4% + MwSt.

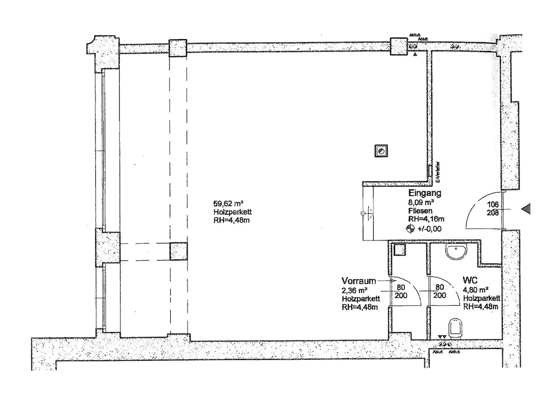
Flächen und Ausstattung

Wohnfläche:
75,00 m²
Zimmer:
1
Badezimmer:
1
Stellplätze:
1

Energieeffizienz

Energiequelle:
Gas
Objektbeschreibung:
Wir verkaufen ein helles Loft in einer wunderschönen Jugendstil-Villa aus dem Jahr 1900. Der großzügige Wohn- und Schlafbereich beeindruckt mit einer beeindruckenden Raumhöhe von 4,5 Metern und schafft ein einzigartiges Wohngefühl.

Aufteilung der Immobilie:
Erdgeschoss: Eingangsbereich und offener Küchenbereich, der Wohn- und Schlafbereich und das Badezimmer, welche über zwei Stufen erreichbar sind.

Es besteht die Möglichkeit eine Garage käuflich zu erwerben.

Die Immobilie kann auch als Büroräumlichkeit genützt werden.

Ein Lift ist vorhanden und sorgt für zusätzlichen Komfort.
Teilweise handelt es sich bei den Bildern um Renderings.
Lage:
Die Immobilie befindet sich in der Cavourstraße unterhalb vom Brunnenplatz.
Sonstiges:
Alle Angaben sind indikativ und können jederzeit Abänderungen unterliegen.

Kontaktperson

Firma:
Benedetti Real Service | Christie's International Real Estate
Name:
Sophia Biasi 
Straße:
Via Leonardo da Vinci Strasse 9
Ort:
39012 Merano
Telefon:
00390473236613
Faxnummer:
00390473231296
E-Mail:
bs@irs-benedetti.com
Website:
www.irs-benedetti.com
Mitteilung senden