appartamento duplex con balcone e vista sull'altopiano dello sciliar

RenonLongostagno
675.000 €

informazioni generali

Riferimento:
1812_14
Contratto:
acquisto
Proprietà:
appartamento
Piano:
1
Totale piani:
1
ascensore:
solo per residenti:
no
Prezzo di acquisto:
675.000,00 €
Provvigione più IVA:
3% + MwSt. / IVA. / VAT.

Superfici e caratteristiche

Superficie abitabile:
127,20 m²
Superficie di vendita:
199,53 m²
Stanze:
4
Camere da letto:
3
Bagni:
3
Balconi:
1

Efficenza energetica

anno di costruzione:
2025
fonte di energia:
pompa di calore aria
Riscaldamento:
riscaldamento a pavimento
Descrizione:
Nel centro di Longostango a Renon vendiamo un nuovo appartamento duplex con balcone in un complesso residenziale di alta qualità. L'immobile offre una vista privilegiata sull'altopiano dello Sciliar.

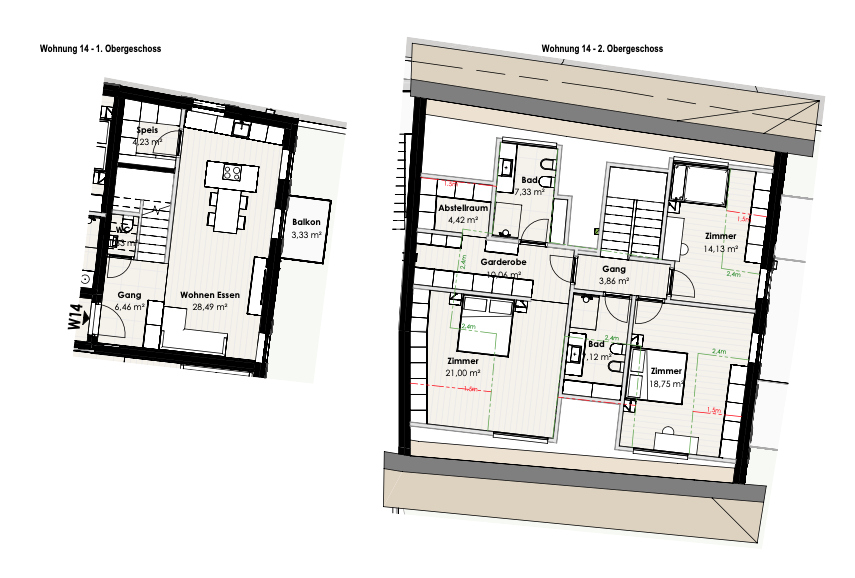
L'immobile è suddiviso come segue:
1° piano: attrio, zona living con cucina e accesso al balcone, dispensa, bagno per gli ospiti.
2° piano: corridoio, 3 camere da letto, 2 bagni, ripostiglio, guardaroba.
Piano interrato: cantina

Consegna: autunno 2025
Casaclima A Natura
Ascensore
Prezzo di vendita garage: da € 27.000,-
Posizione:
Nel cuore del paese di Longostango a Renon, con i suoi 650 abitanti, la parte più orientale dell'altopiano, è in costruzione un edificio residenziale di alta qualità Casaclima A Nature con 17 unità abitative. Il complesso residenziale è situato in una posizione idilliaca e offre una fantastica vista sulla zona dello Sciliar. Il paese è circondato da prati e boschi e offre numerose possibilità di escursioni.

Distanze (in auto):

Collalbo: 6 km - 10 minuti, Stazione della funivia del Corno del Renon: 11 km - 15 minuti, Bolzano: 22,5 km - 30 minuti, Merano: 61,5 km - 1h, Innsbruck: 110 km - 1h 40', Monaco: 266 km - 3h 30'.
Descrizione dell'attrezzatura:
Sistema di ventilazione a richiesta
Accesso senza barriere
Riscaldamento a pavimento
Ventilazione dello spazio abitativo con recupero di calore
Altre informazioni:
Tutte le informazioni sono indicative e possono essere soggette a modifiche in qualsiasi momento.

Persona di contatto

Agenzia:
Real Estate | Valuation | Advisory | Brokerage
Nome:
Dr. Benedetti Real Service - since 1945 
Via:
Via Leonardo da Vinci 9
Luogo:
39012 Meran
Telefono:
+39 0473 236613
Fax:
+39 0473 231296
Mail:
info@irs-benedetti.com
Website:
www.irs-benedetti.com
Contatta l'agente