duplex apartment with balcony and panoramic view on the sciliar plateau

RenonLongostagno
675.000 €

general

object number external:
1812_14
marketing method:
purchase
property:
flat
floor:
1
amount of floors:
1
elevator:
yes
reserved for residents:
no
purchase price:
675.000,00 €
broker's fee plus VAT:
3% + MwSt. / IVA. / VAT.

Areas and amenities

living space:
127,20 m²
Sales space:
199,53 m²
Number of Rooms:
4
Number of bedrooms:
3
Number of bathrooms:
3
number of balconies:
1

Energetic efficiency

construction year:
2025
energy source:
air heat pump
heating:
underfloor heating
Description:
In the centre of Longostango a Renon we are selling a new duplex apartment with balcony in a high-quality residential complex. This property offers a unique view on the Sciliar Plateau.

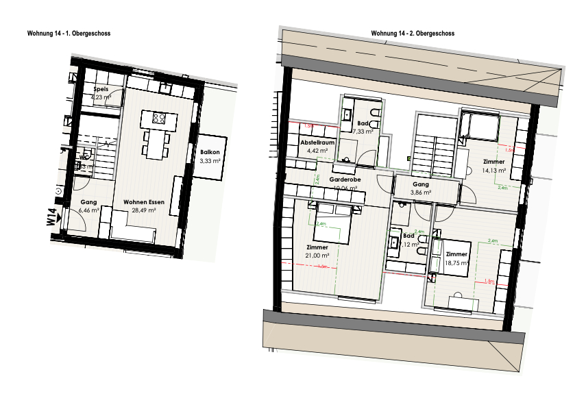
The property is divided as follows:
1st floor: corridor, living area with kitchen and access to the balcony, guest bathroom, pantry.
2nd floor: corridor, 3 bedrooms, 2 bathrooms, storage room, wardrobe.
Basement: cellar

Completion: Autumn 2025
Climate House A Nature
Elevator
Selling price garage: starting at € 27.000,-
Location:
In the heart of Longostango a Renon, which counts 650 inhabitants and is a small village in the easternmost part on the high Sciliar plateau, you can invest in exclusive properties that belong to a high-quality Climate House A Nature residential building with 17 apartments. The residential complex is situated in an idyllic location and offers a fantastic view of the Sciliar area. The village is surrounded by meadows and forests and offers numerous hiking opportunities.

Distances (by car):

Collabo: 6 km - 10 minutes, Corno del Renon cable car station: 11 km - 15 minutes, Bolzano: 22.5 km - 30 minutes, Merano: 61.5 km - 1h, Innsbruck: 110 km - 1h 40', Munich: 266 km - 3h 30'.
Equipment description:
Demand-controlled ventilation system
Barrier-free access
Underfloor heating
Living space ventilation with heat recovery
Other information:
All information is indicative and may be subject to change at any time.

Contact person

Company:
Real Estate | Valuation | Advisory | Brokerage
Name:
Dr. Benedetti Real Service - since 1945 
Street:
Via Leonardo da Vinci 9
Place:
39012 Meran
Phone:
+39 0473 236613
Fax number:
+39 0473 231296
Email:
info@irs-benedetti.com
Website:
www.irs-benedetti.com
Direct message