Affitto di un’unitÀ immobiliare con molteplici possibilitÀ di utilizzo in posizione strategica

MeranoSinigo
1.938 €

informazioni generali

Riferimento:
1960
Contratto:
affitto
Proprietà:
Uffici / Studi professionali (Spazio ufficio)
ascensore:
affitto netto:
1.938,00 €
Provvigione più IVA:
3.488,- + MwSt. / IVA. / VAT.

Superfici e caratteristiche

Superficie utile:
323,00 m²
Descrizione:
MONOLOCALE AL 2° PIANO – LUMINOSO E POLIVALENTE

In affitto dal 2025: Ampia e luminosa unità di circa 323 m² al 2° piano della zona artigianale Merano Sinich, nelle immediate vicinanze dell’uscita MeBo Merano Sud. L’altezza dei locali di 3,15 m garantisce un ambiente di lavoro piacevole.

Punti di forza e dotazioni:
- Molteplici possibilità di utilizzo nel settore terziario: ufficio, laboratorio, studio cinematografico, studio di yoga/pilates o servizi di vario genere.
- Ascensore per persone, montacarichi e rampa per camion per carico e trasporto agevole di merci pesanti o ingombranti.
- Due ingressi separati.
- Posti auto al 2° piano interrato: 1 posto incluso, 2° posto opzionale a 70 € mensili.
- Servizi igienici presenti.
- Collegamenti elettrici e telefonici direttamente disponibili al piano.

L’unità è ideale per aziende che cercano una superficie di lavoro flessibile, centrale e ben collegata.
Posizione:
L’immobile si trova a Sinich, presso Merano, a pochi minuti dall’uscita MeBo Merano Sud. Questa posizione strategica combina ottima accessibilità con un ambiente tranquillo e funzionale, ideale per attività commerciali e servizi.

La zona offre una buona infrastruttura: negozi, ristorazione e collegamenti con i trasporti pubblici sono nelle immediate vicinanze. Grazie alla vicinanza alle principali arterie stradali, è garantito un rapido collegamento con Merano, Bolzano e l’intera Val Venosta.

La posizione è particolarmente adatta per aziende che cercano visibilità, vantaggi logistici e molteplici possibilità di utilizzo.
Descrizione dell'attrezzatura:
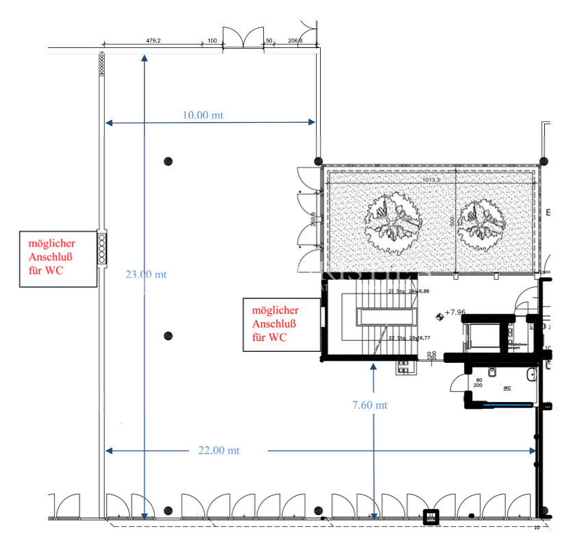
L’unità immobiliare non è ancora sviluppata e dispone di due accessi. È dotata di pavimento prefabbricato verniciato in grigio.
La merce può essere facilmente scaricata tramite la rampa di carico e trasportata al 2° piano con un montacarichi con portata di 4000 kg.

L’immobile è completamente dotato di WC. Nel WC sono già presenti le predisposizioni per una cabina doccia. Sono inoltre disponibili gli allacciamenti per una cucina. Gli allacciamenti per il riscaldamento centrale / gas sono presenti sullo stesso piano.
Sul piano sono già disponibili anche collegamenti elettrici, telefonici e l’allacciamento per un idrante.
Altre informazioni:
Tutte le informazioni sono indicative e possono essere soggette a modifiche in qualsiasi momento.

Persona di contatto

Agenzia:
Benedetti Real Service | Christie's International Real Estate
Nome:
Heidi Biasi 
Via:
Via Leonardo da Vinci Strasse 9
Luogo:
39012 Merano
Telefono:
00390473236613
Fax:
00390473231296
Mail:
bs@irs-benedetti.com
Website:
www.irs-benedetti.com
Contatta l'agente