Rental of a property unit with multiple use possibilities in a strategic location

MeranoSinigo
1.938 €

general

object number external:
1960
marketing method:
rent/lease
property:
Office / practices (office space)
floor:
2
amount of floors:
2
elevator:
yes
net rent:
1.938,00 €
broker's fee plus VAT:
3.488,- + MwSt. / IVA. / VAT.

Areas and amenities

Floor space:
323,00 m²
Description:
STUDIO UNIT ON THE 2ND FLOOR – BRIGHT AND VERSATILE

For rent from 2025: A spacious, bright unit of approx. 323 m² on the 2nd floor of the Merano Sinich craftsman zone, in close proximity to the MeBo Merano South exit. The ceiling height of 3.15 m ensures a pleasant working environment.

Highlights and features:
- Multiple usage possibilities in the tertiary sector: office, laboratory, film studio, yoga/pilates studio, or services of any kind.
- Passenger elevator, freight elevator, and truck loading ramp for easy loading and transport of heavy or bulky goods.
- Two separate entrances.
- Parking on the 2nd underground level: 1 parking space included, 2nd parking space optional at €70/month.
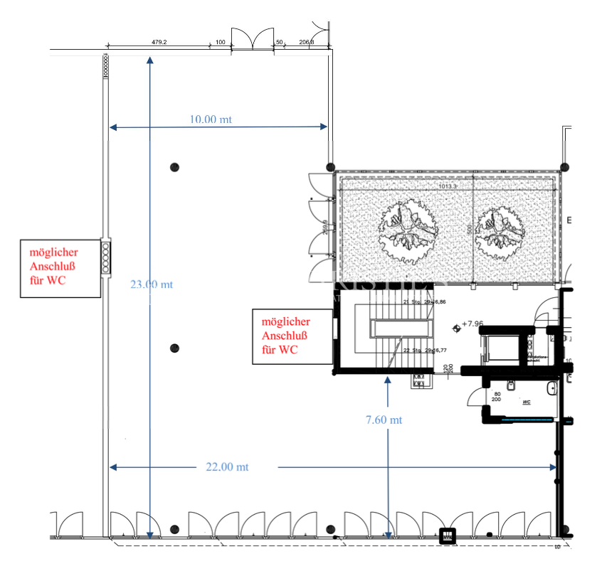
- WC available.
- Electricity and telephone connections directly available on the floor.

The unit is ideal for companies looking for a flexible, centrally located, and well-connected workspace.
Location:
The property is located in Sinich, near Merano, just a few minutes from the MeBo Merano South exit. This strategic location combines excellent accessibility with a quiet, functional environment, ideal for commercial and service activities.

The area offers good infrastructure: shops, restaurants, and public transport connections are in close proximity. Thanks to its proximity to the main traffic routes, fast connections to Merano, Bolzano, and the entire Vinschgau region are ensured.

The location is particularly suitable for companies that value visibility, logistical advantages, and versatile usage possibilities.
Equipment description:
The property is unfinished and has two entrances. It is equipped with a prefabricated floor, painted gray.
Goods can be easily unloaded via the loading ramp and transported to the 2nd floor using a freight elevator with a capacity of 4,000 kg.

The property is fully equipped with a WC. Connections for a shower cabin are already installed in the WC. Connections for a kitchen are also available. Connections for central heating/gas are present on the floor.
Electricity and telephone connections as well as a hydrant connection are already installed on the floor.
Other information:
All information is indicative and may be subject to change at any time.

Contact person

Company:
Benedetti Real Service | Christie's International Real Estate
Name:
Sophia Biasi 
Street:
Via Leonardo da Vinci Strasse 9
Place:
39012 Merano
Phone:
00390473236613
Fax number:
00390473231296
Email:
bs@irs-benedetti.com
Website:
www.irs-benedetti.com
Direct message