Vermietung einer liegenschaftseinheit mit vielfÄltiger nutzungsmÖglichkeit in strategischer lage

MeranSinich
1.938 €

allgemeine Informationen

Immobiliennr.:
1960
Vermarktungsart:
Miete
Immobilienart:
Büro/Praxen (Bürofläche)
Fahrstuhl:
Ja
Nettokaltmiete:
1.938,00 €
Provision zzgl. MwSt.:
3.488,- + MwSt. / IVA. / VAT.

Flächen und Ausstattung

Nutzfläche:
323,00 m²
Objektbeschreibung:
Monolokal im 2. Obergeschoss – Lichtdurchflutet und Vielseitig Nutzbar

Zur Vermietung ab 2025: Eine großzügige, helle Einheit mit ca. 323 m² im 2. Obergeschoss der Handwerkerzone Meran Sinich, in unmittelbarer Nähe der MeBo-Ausfahrt Meran Süd. Die Raumhöhe von 3,15 m sorgt für ein angenehmes Arbeitsambiente.

Highlights und Ausstattung:
- Vielfältige Nutzungsmöglichkeiten im tertiären Bereich: Büro, Labor, Filmstudio, Yoga-Pilates-Studio oder Dienstleistungen aller Art.
- Personenaufzug, Lastenaufzug und LKW-Laderampe für komfortables Verladen und Transportieren schwerer oder sperriger Güter.
- Zwei separate Zugänge.
- Parkmöglichkeiten im 2. Untergeschoss: 1 Parkplatz inkludiert, 2. Parkplatz optional für 70 € monatlich.
- WC vorhanden.
- Strom- und Telefonanschluss direkt auf der Etage verfügbar.

Die Einheit eignet sich ideal für Unternehmen, die eine flexible, zentral gelegene und gut erschlossene Arbeitsfläche suchen.
Lage:
Die Liegenschaft befindet sich Sinich bei Meran, nur wenige Minuten von der MeBo-Ausfahrt Meran Süd entfernt. Diese strategische Lage verbindet exzellente Erreichbarkeit mit einer ruhigen, funktionalen Umgebung, ideal für Gewerbe und Dienstleistungen.

Die Umgebung bietet eine gute Infrastruktur: Einkaufsmöglichkeiten, Gastronomie und öffentliche Verkehrsanbindungen sind in unmittelbarer Nähe. Dank der Nähe zu den Hauptverkehrsadern ist eine schnelle Anbindung an Meran, Bozen und den gesamten Vinschgau gewährleistet.

Die Lage eignet sich besonders für Unternehmen, die Wert auf Sichtbarkeit, logistische Vorteile und vielseitige Nutzungsmöglichkeiten legen.
Ausstattung:
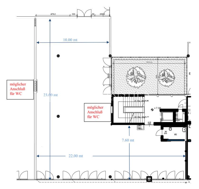
Die Liegenschaft ist nicht ausgebaut und hat 2 Zugänge. Sie ist mit Fertigboden, grau lackiert, ausgestattet.
Ware kann problemlos über die Laderampe abgeladen und mit einem Lasten- aufzug (Traglast 4000 kg) ins 2. OG gebracht werden.
Die Liegenschaft ist komplett mit WC. Für einen Duschkabine sind im WC bereits die Anschlüsse vorhanden. Ebenso sind Anschlüsse für eine
Küche vorhanden. Die Anschlüsse für die Zentralheizung/Gas sind im Stockwerk. Auch bereits im Stockwerk sind Strom- und Telefonanschluss und Anschluss für einen Hydranten.
Sonstiges:
Alle Angaben sind indikativ und können jederzeit Abänderungen unterliegen.

Kontaktperson

Firma:
Benedetti Real Service | Christie's International Real Estate
Name:
Heidi Biasi 
Straße:
Via Leonardo da Vinci Strasse 9
Ort:
39012 Merano
Telefon:
00390473236613
Faxnummer:
00390473231296
E-Mail:
bs@irs-benedetti.com
Website:
www.irs-benedetti.com
Mitteilung senden