Unità commerciale nel complesso “Rio Sinigo”

MeranoMerano
Su richiesta

informazioni generali

Riferimento:
M053
Contratto:
affitto
Proprietà:
Uffici / Studi professionali
Piano:
2
Totale piani:
2
ascensore:
Prezzo di acquisto:
1.938,00 €

Superfici e caratteristiche

Superficie abitabile:
323,00 m²
Superficie totale:
400,00 m²
Stanze:
1
WC separati:
1

Efficenza energetica

stato dell'immobile:
nuovo
fonte di energia:
gas
Riscaldamento:
riscaldamento centralizzato
classe energetica:
Legge90D
Descrizione:

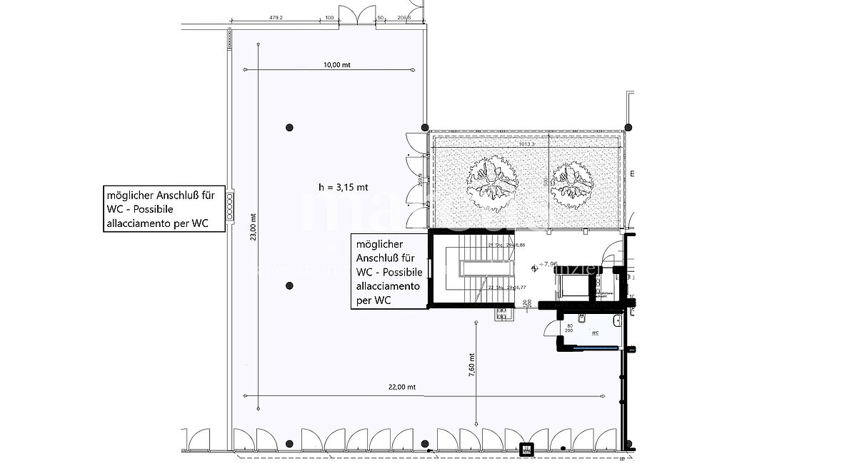
Al 2° piano del complesso “Parco Commerciale Rio Sinigo” è disponibile in locazione un’ampia superficie commerciale di 323 m² netti (altezza 3,15 m). L’unità è destinata ad uso terziario e si distingue per l’ottima accessibilità: la merce può essere scaricata comodamente tramite una rampa di carico e trasportata direttamente al 2° piano con un montacarichi (portata 4.000 kg).

L’immobile dispone di due accessi ed è dotato di pavimento industriale verniciato grigio. Sono presenti un WC con predisposizione per cabina doccia, allacciamenti per cucina e collegamento al riscaldamento centralizzato a gas. La portata del solaio è di 750 kg/m².

All’unità spettano 3 posti auto al piano interrato (70,00 € ciascuno + IVA).

  • Canone mensile: 1.938,00 € + IVA
  • Durata contratto: 6 + 6 anni
  • Spese accessorie: spese condominiali e di consumo (es. luce, rifiuti), manutenzione porte tagliafuoco e adeguamenti obbligatori previsti per l’attività (es. impianto antincendio)
  • Deposito cauzionale: 9 mensilità
  • Consegna: ca. 3–4 mesi dalla firma del contratto; attualmente non è ancora presente l’agibilità
  • Obblighi: assicurazione RC rischio locativo e incendio con massimale secondo le disposizioni del locatore
  • Provvigione: 2.907,00 € + IVA

Il contratto di locazione viene predisposto dal locatore; i relativi costi sono a carico del conduttore per la metà (ca. 350,00 € + IVA). A fine locazione l’immobile dovrà essere restituito nello stato originario, libero da installazioni, divisori e arredi.



(Ref. M053)
Contatta l'agente