Top-Gewerbefläche "Rio Sinigo"

MeranMeran
auf Anfrage

allgemeine Informationen

Immobiliennr.:
M053
Vermarktungsart:
Miete
Immobilienart:
Büro/Praxen
Etage:
2
Gesamtetagen:
2
Fahrstuhl:
Ja
Kaufpreis:
1.938,00 €

Flächen und Ausstattung

Wohnfläche:
323,00 m²
Gesamtfläche:
400,00 m²
Zimmer:
1
sep. WC:
1

Energieeffizienz

Zustand:
Erstbezug
Energiequelle:
Gas
Heizung:
Zentralheizung
Energieklasse:
Legge90D
Objektbeschreibung:

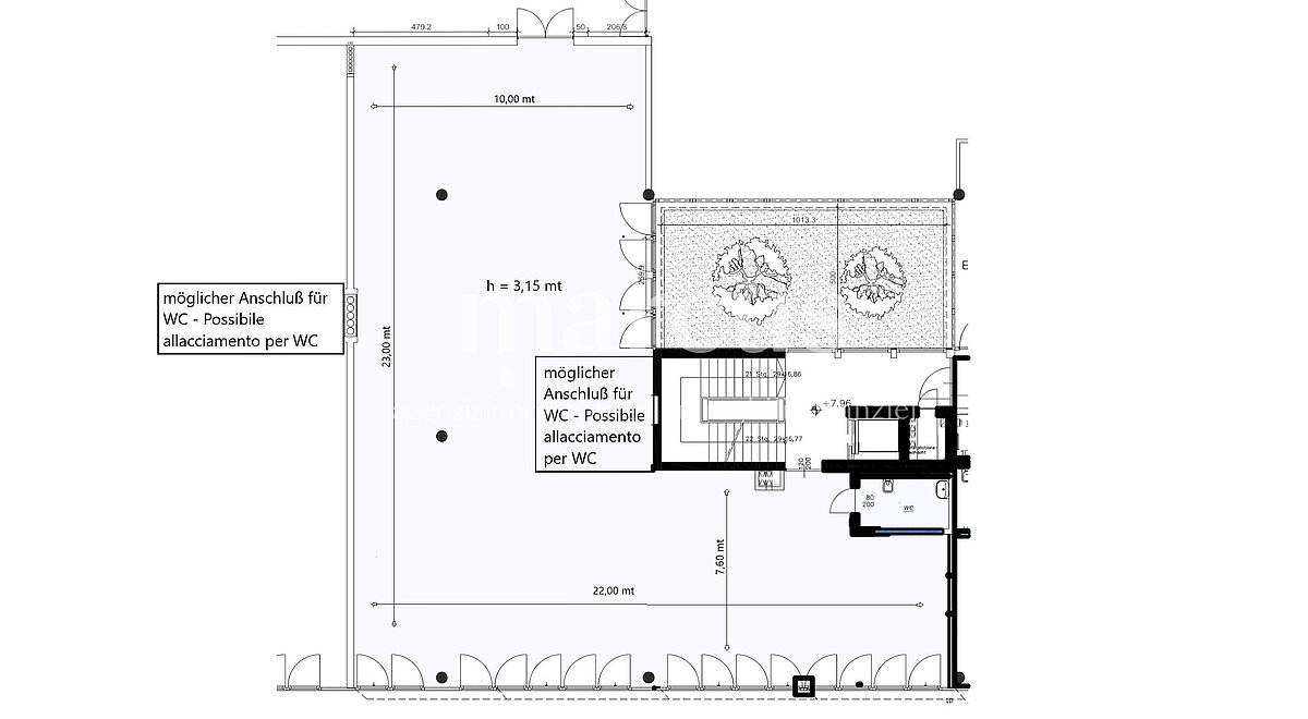
Im 2. Obergeschoss des Gewerbeparks Rio Sinigo wird eine großzügige Gewerbefläche mit 323 m² Nettofläche (Raumhöhe 3,15 m) vermietet. Die Einheit ist als terziäre Nutzung vorgesehen und überzeugt durch ihre gute Erreichbarkeit: Ware kann bequem über eine Laderampe angeliefert und mit einem Lastenaufzug (Traglast 4.000 kg) direkt ins 2. OG transportiert werden.

Die Fläche verfügt über zwei Zugänge und ist mit Fertigboden (grau lackiert) ausgestattet. Ein WC mit Anschlüssen für eine Duschkabine, Küchenanschlüsse sowie der Anschluss an die Zentralheizung/Gas sind vorhanden. Die Traglast der Decke beträgt 750 kg/m².

Zur Einheit stehen 3 Parkplätze im Untergeschoss zur Verfügung (je 70,00 € zzgl. MwSt.).

  • Monatsmiete: 1.938,00 € zzgl. MwSt. 
  • Mietdauer: 6 + 6 Jahre
  • Nebenkosten: Kondominiums- und Verbrauchsspesen (z. B. Strom, Müll), Wartung Brandschutztüren sowie behördlich vorgeschriebene Auflagen der eigenen Tätigkeit (z. B. Brandmeldeanlage)
  • Kaution: 9 Monatsmieten
  • Übergabe: ca. 3–4 Monate nach Vertragsunterzeichnung, aktuell liegt noch keine Benutzungsgenehmigung vor
  • Auflagen: Haftpflicht – Mieterrisiko und Feuerversicherung mit Deckungsbeitrag laut Vorgaben des Vermieters.
  • Vermittlungshonorar: 2.907,00 € zzg. MwSt

Der Mietvertrag wird vom Vermieter aufgesetzt; die Kosten hierfür trägt der Mieter zur Hälfte (ca. 350,00 € zzgl. MwSt.). Bei Mietende ist die Einheit im ursprünglichen Zustand, frei von Installationen, Trennwänden und Mobiliar, zurückzugeben.



(Ref. M053)
Mitteilung senden