Nuovo appartamento al piano terra con giardino nella soleggiata val venosta

SilandroCorces
455.000 €

informazioni generali

Riferimento:
2040_A1
Contratto:
acquisto
Proprietà:
appartamento
ascensore:
solo per residenti:
no
Prezzo di acquisto:
455.000,00 €
Provvigione più IVA:
4% + IVA

Superfici e caratteristiche

Superficie abitabile:
69,14 m²
Superficie giardino:
66,81 m²
Stanze:
3
Camere da letto:
2
Bagni:
1
WC separati:
1
Terrazze:
1

Efficenza energetica

anno di costruzione:
2025
fonte di energia:
teleriscaldamento
Riscaldamento:
riscaldamento a pavimento
primary energy sources:
FERN
classe energetica:
A
Descrizione:
Progetto di nuova costruzione CASTANI - vivere con qualità

CASTANI è un progetto di nuova costruzione di alta qualità in una posizione collinare soleggiata sopra Silandro. L'architettura moderna e senza tempo si inserisce armoniosamente nella struttura consolidata del villaggio e offre un elevato livello di qualità abitativa, privacy e sostenibilità.
Le unità residenziali convincono per le loro planimetrie ben studiate, gli spazi abitativi luminosi e le aree esterne private come terrazze, logge e giardini. I materiali naturali e la costruzione di alta qualità garantiscono una piacevole esperienza di vita e la conservazione del valore a lungo termine.

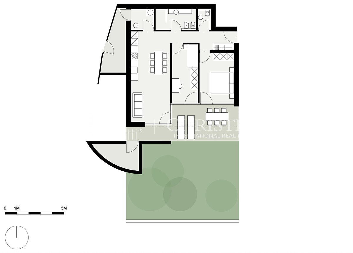
Appartamento convenzionale al piano terra con giardino

Questo appartamento convenzionale al piano terra vanta un soleggiato giardino privato e una magnifica vista sulle montagne.
L'ampia zona giorno con angolo cottura si apre sulla loggia e sul giardino. Due camere da letto offrono accesso diretto alla terrazza e al giardino. Lo spazio è completato da un bagno principale, un WC diurno separato e due locali cantina.
Posizione:
Il CASTANI è situato in una posizione collinare soleggiata e tranquilla sopra il villaggio di Corces, una delle zone residenziali più ricercate della Val Venosta. La posizione elevata offre una vista impressionante sulla valle, con scorci su Kortsch, Silandro e fino a Laces.
L'area circostante è caratterizzata da meleti, vigneti e castagneti e offre un ambiente di vita naturale e tranquillo. Allo stesso tempo, i negozi per le necessità quotidiane, le fermate degli autobus, le panetterie e i bar sono raggiungibili in pochi minuti a piedi. La città principale di Silandro/Schlanders, con la sua vasta gamma di negozi, strutture culturali e per il tempo libero, è facilmente raggiungibile in bicicletta o in e-bike.
La posizione è particolarmente soleggiata: nei mesi invernali si beneficia di periodi di sole più lunghi, mentre in estate le terrazze coperte e gli elementi strutturali di ombreggiamento garantiscono un clima piacevole. Numerose possibilità di escursioni e di svago partono proprio dalla porta di casa. Le stazioni sciistiche e la città termale di Merano sono raggiungibili in circa 40 minuti.
Descrizione dell'attrezzatura:
Il CASTANI è costruito secondo elevati standard di qualità e sostenibilità ed è conforme allo standard KlimaHaus A-Nature.

Costruzione ed energia
- CasaClima A-Natura
- Basso consumo energetico (< 30 kWh/m²a)
- Collegamento al teleriscaldamento (materia prima rinnovabile: legno)
- Involucro edilizio altamente isolato
- Finestre a triplo vetro

Accessori per interni
- Riscaldamento a pavimento in tutte le stanze
- Parquet multistrato in soggiorno, camere da letto, corridoio e cucina
- Piastrelle in gres porcellanato in bagno, WC e locali adiacenti
- Porte interne finemente impiallacciate (frassino, rovere, larice, faggio o laccate), altezza circa 2,10 m

Casa intelligente
- Componenti intelligenti di Loxone
- Controllo di riscaldamento, ombreggiatura e illuminazione tramite smartphone o tablet
- Espandibile con moduli aggiuntivi
- Mobilità e aree comuni
- Parcheggio sotterraneo con predisposizione per le stazioni di ricarica elettrica (conduttura vuota)
- Parcheggio coperto per biciclette
- Stazione di lavaggio, riparazione e ricarica delle biciclette
- Collegamento sotterraneo delle sezioni dell'edificio
Altre informazioni:
Tutte le informazioni sono indicative e possono essere soggette a modifiche in qualsiasi momento.

Persona di contatto

Agenzia:
Benedetti Real Service | Christie's International Real Estate
Nome:
Sophia Biasi 
Via:
Via Leonardo da Vinci Strasse 9
Luogo:
39012 Merano
Telefono:
00390473236613
Fax:
00390473231296
Mail:
bs@irs-benedetti.com
Website:
www.irs-benedetti.com
Contatta l'agente