New ground floor apartment with garden in the sunny vinschgau valley

SilandroCorces
455.000 €

general

object number external:
2040_A1
marketing method:
purchase
property:
flat
elevator:
yes
reserved for residents:
no
purchase price:
455.000,00 €
broker's fee plus VAT:
4% + VAT

Areas and amenities

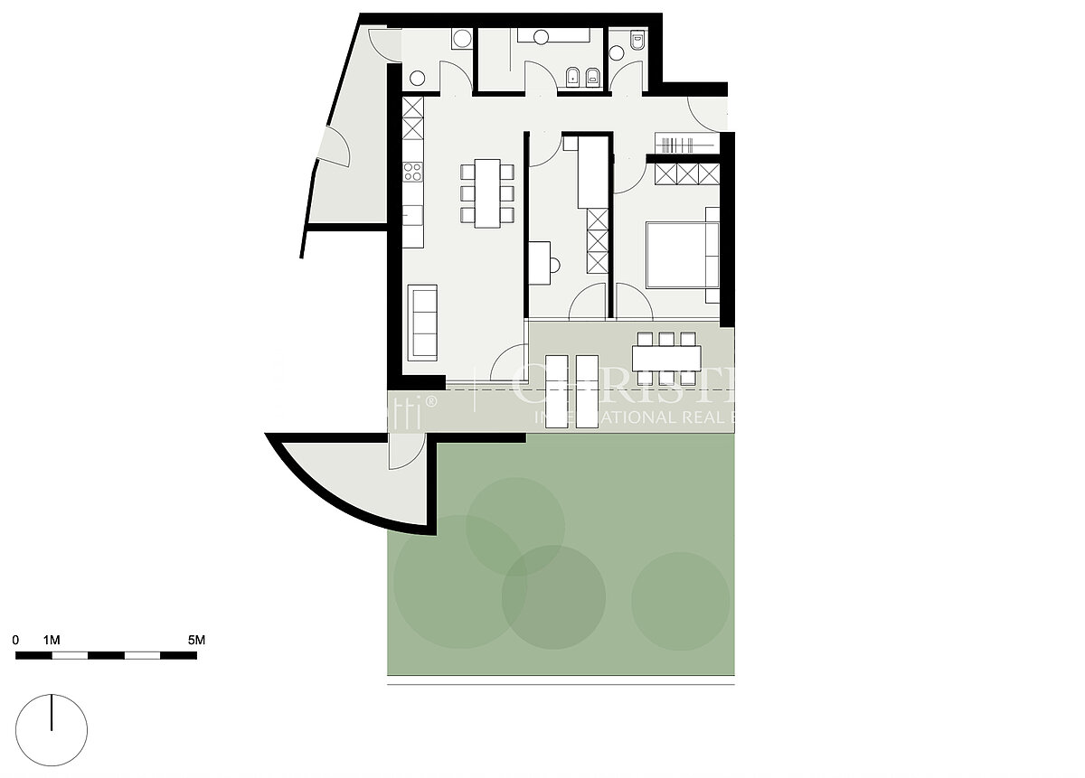
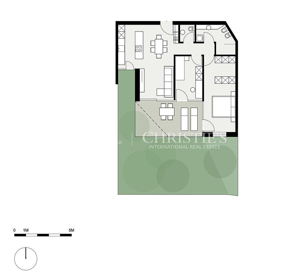
living space:
69,14 m²
garden space:
66,81 m²
Number of Rooms:
3
Number of bedrooms:
2
Number of bathrooms:
1
Number of sep. bathrooms:
1
number of terraces:
1

Energetic efficiency

construction year:
2025
energy source:
district heating
heating:
underfloor heating
primary energy sources:
FERN
energy class:
A
Description:
CASTANI new-build project - living with quality

CASTANI is a high-quality new-build project on a sunny hillside above Silandro/Schlanders. The modern, timeless architecture blends harmoniously into the established village structure and offers a high level of living quality, privacy and sustainability.
The residential units impress with well thought-out floor plans, bright living spaces and private outdoor areas such as terraces, loggias and gardens. Natural materials and high-quality construction ensure a pleasant living experience and long-term value retention.

Conventional first floor apartment with garden

This conventional first floor apartment boasts a sunny private garden and magnificent mountain views.
The spacious living area with kitchenette opens onto the loggia and garden. Two bedrooms offer direct access to the terrace and garden. The space is complemented by a main bathroom, a separate daytime WC and two cellar rooms.
Location:
The CASTANI is situated in a sunny and quiet hillside location above the village of Kortsch/Corces, one of the most sought-after residential areas in the Vinschgau Valley. The elevated position offers impressive views over the valley with views of Kortsch, Schlanders and as far as Latsch.
The surrounding area is characterized by apple orchards, vineyards and chestnut groves and offers a natural and peaceful living environment. At the same time, stores for daily needs, bus stops, bakeries and bars are just a few minutes' walk away. The main town of Silandro/Schlanders with its wide range of shopping, cultural and leisure activities is easily accessible by bike or e-bike.
The location is particularly sunny: in the winter months you benefit from longer periods of sunshine, while in summer covered terraces and structural shading elements ensure a pleasant living climate. Numerous hiking and leisure activities start right on the doorstep. Ski resorts and the spa town of Merano can be reached in around 40 minutes.
Equipment description:
The CASTANI is built to high quality and sustainability standards and complies with the KlimaHaus A-Nature standard.

Construction & Energy
- ClimateHouse A-Nature
- Low energy consumption (< 30 kWh/m²a)
- District heating connection (renewable raw material wood)
- Highly insulated building envelope
- Triple-glazed windows

Interior fittings
- Underfloor heating in all rooms
- Multi-layer parquet flooring in living rooms, bedrooms, hallway and kitchen
- Porcelain stoneware tiles in bathroom, WC and adjoining rooms
- Fine veneered interior doors (ash, oak, larch, beech or lacquered), height approx. 2.10 m

Smart Home
- Smart components from Loxone
- Control of heating, shading and lighting via smartphone or tablet
- Expandable with additional modules
- Mobility & common areas
- Underground parking garage with preparation for e-charging stations (empty conduit)
- Covered bicycle parking space
- Bicycle washing, repair and charging station
- Underground connection of the building sections
Other information:
All information is indicative and may be subject to change at any time.

Contact person

Company:
Benedetti Real Service | Christie's International Real Estate
Name:
Sophia Biasi 
Street:
Via Leonardo da Vinci Strasse 9
Place:
39012 Merano
Phone:
00390473236613
Fax number:
00390473231296
Email:
bs@irs-benedetti.com
Website:
www.irs-benedetti.com
Direct message