Duplex nuovo con terrazza in zona tranquilla

Prato allo StelvioPrato
380.000 €

informazioni generali

Riferimento:
ME13520_3
Contratto:
acquisto
Proprietà:
appartamento
Piano:
2
Totale piani:
2
ascensore:
no
arredato:
parzialmente
solo per residenti:
no
Prezzo di acquisto:
380.000,00 €
Provvigione più IVA:
3

Superfici e caratteristiche

Superficie abitabile:
73,82 m²
Superficie balconi/terrazze:
13,51 m²
Superficie cantina:
21,36 m²
Superficie di vendita:
105,44 m²
Stanze:
3
Camere da letto:
2
Bagni:
2
Balconi:
1
Terrazze:
1
Loggie:
1

Efficenza energetica

anno di costruzione:
2025
stato dell'immobile:
come nuovo
fonte di energia:
teleriscaldamento
Riscaldamento:
riscaldamento a pavimento
Descrizione:
Questo moderno appartamento duplex di nuova costruzione colpisce per la sua distribuzione intelligente degli spazi su due livelli e offre un comfort abitativo contemporaneo in una struttura ad alta efficienza energetica. Essendo una nuova realizzazione, l’immobile soddisfa i più elevati standard tecnici e qualitativi – ideale sia come prima casa che come investimento.
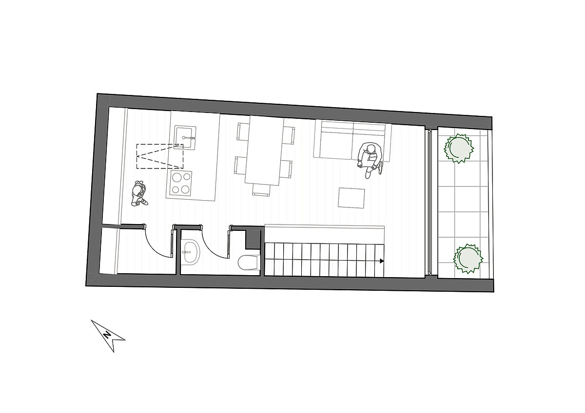
Al primo piano si trovano due camere da letto, un bagno moderno con WC, un ingresso e una loggia accogliente. Il secondo piano offre un pratico ripostiglio, un WC per gli ospiti e un’ampia zona giorno con cucina integrata, baciata dalla luce naturale, con accesso alla terrazza esposta a sud-est – perfetta per godersi il sole e momenti di relax all’aperto.
Una cantina privata è inclusa nel prezzo. È possibile acquistare separatamente fino a due posti auto coperti al prezzo di 25.000 € ciascuno.
In caso di acquisto come prima casa, i costi di costruzione sono detraibili fiscalmente fino a 48.000 € in 10 anni. Per l’acquisto come seconda casa, è possibile detrarre fino a 34.560 € nello stesso periodo – un vantaggio che rende l’investimento ancora più interessante.
La posizione è tranquilla e ben servita: negozi, ristoranti e aree naturali sono facilmente raggiungibili a piedi.

Persona di contatto

Agenzia:
Castellanum RE Srl
Nome:
Castellanum Meran - Merano 
Via:
Via Portici 37
Luogo:
39012 Merano
Telefono:
00390473055344
Mail:
meran@castellanum.it
Website:
www.castellanum.it
Kontaktperson
Contatta l'agente