Ampio magazzino in posizione strategica

Fiè allo SciliarSan Antonio
2.400 €

informazioni generali

Riferimento:
2401-2
Contratto:
affitto
Proprietà:
Magazzino (Magazzino)
ascensore:
no
affitto netto:
2.400,00 €

Superfici e caratteristiche

Superficie utile:
300,00 m²
Superficie di vendita:
300,00 m²
Descrizione:
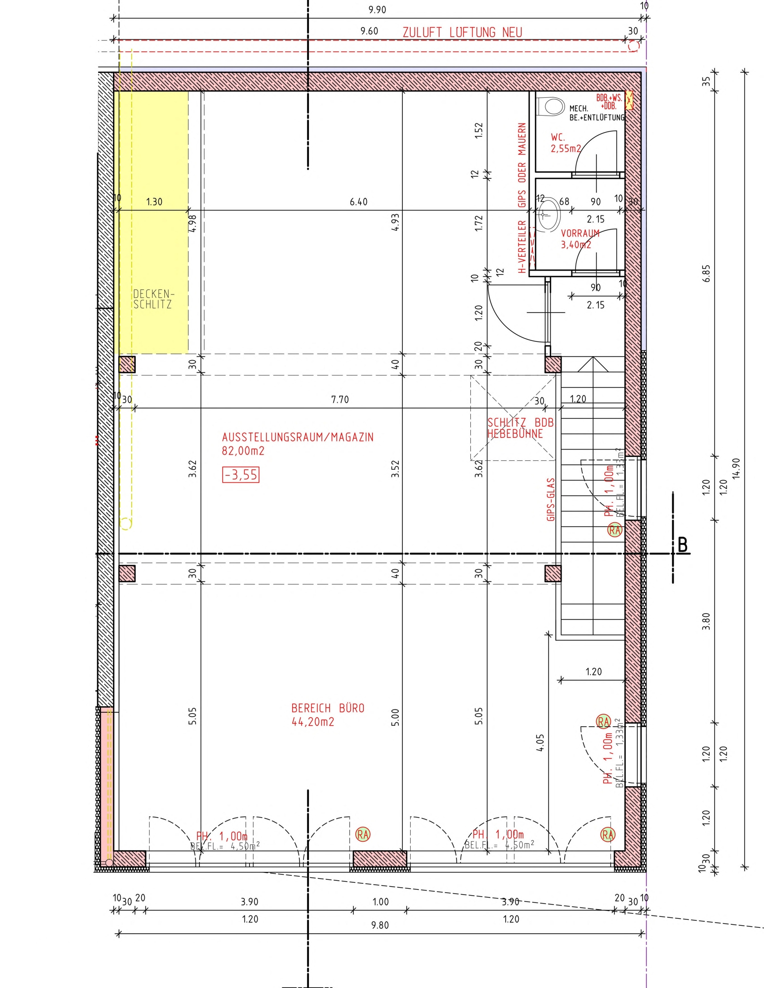
L'immobile commerciale si trova nella zona artigianale di S. Antonio a Fiè allo Sciliar ed è composto da un magazzino con un'altezza del soffitto di circa 4 metri al piano terra e da uno showroom/magazzino con un'altezza del soffitto di circa 3 metri al primo piano.

La superficie di entrambi i piani misura circa 150 metri quadrati ciascuno.
Descrizione dell'attrezzatura:
Al piano terra c'è un vano per una piattaforma elevatrice; al primo piano si trovano i bagni e un'area per gli uffici, per cui la disposizione interna può essere adattata alle rispettive esigenze.

Persona di contatto

Agenzia:
Profanter Immobilien GmbH
Via:
O.v.Wolkensteinstrasse 14/1
Luogo:
39040 Kastelruth (BZ)
Telefono:
+39 348 3832788
Mail:
imm@agentur-profanter.com
Website:
www.agentur-profanter.com
Contatta l'agente