Spacious warehouse in a strategic location

Fiè allo SciliarSan Antonio
2.400 €

general

object number external:
2401-2
marketing method:
rent/lease
property:
Warehouse (storage)
elevator:
no
net rent:
2.400,00 €

Areas and amenities

Floor space:
300,00 m²
Sales space:
300,00 m²
Description:
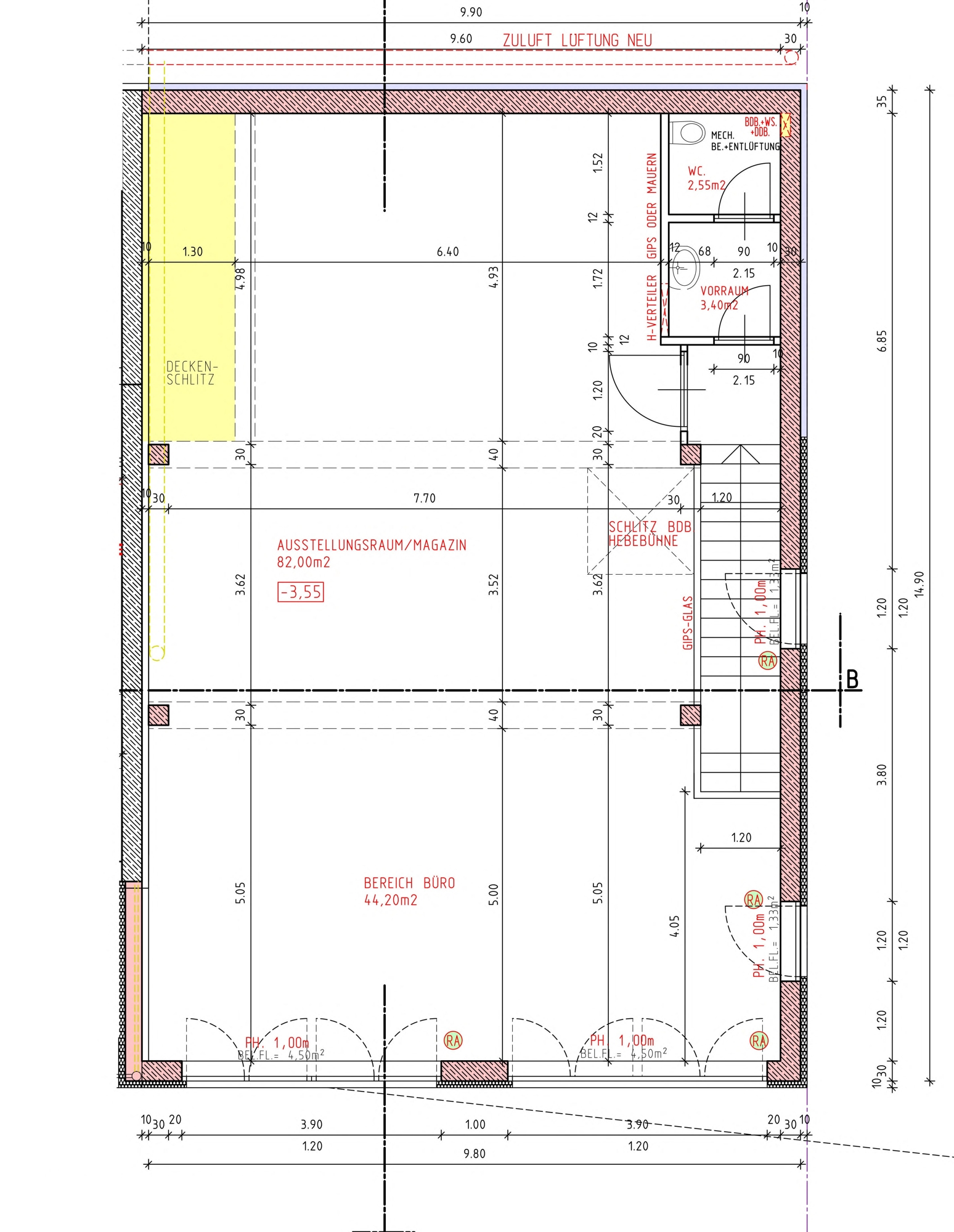
The commercial property is located in the St. Anton artisan zone of Fiè allo Sciliar and consists of a storage room with a ceiling height of approx. 4 metres on the ground floor and a showroom/storage room with a ceiling height of approx. 3 metres on the first floor.

The area of both floors measures approx. 150 square metres each.
Equipment description:
On the ground floor there is a slot for a lifting platform; on the first floor there are bathrooms and an area for offices, whereby the interior layout can be adapted to the respective needs.

Contact person

Company:
Profanter Immobilien GmbH
Street:
O.v.Wolkensteinstrasse 14/1
Place:
39040 Kastelruth (BZ)
Phone:
+39 348 3832788
Email:
imm@agentur-profanter.com
Website:
www.agentur-profanter.com
Direct message