Alpine living luxury - esclusivo appartamento di nuova costruzione

Moso in PassiriaPlan
544.700 €

informazioni generali

Riferimento:
2025_4
Contratto:
acquisto
Proprietà:
appartamento
Piano:
1
Totale piani:
1
ascensore:
solo per residenti:
no
Prezzo di acquisto:
544.700,00 €
Provvigione più IVA:
4% + IVA

Superfici e caratteristiche

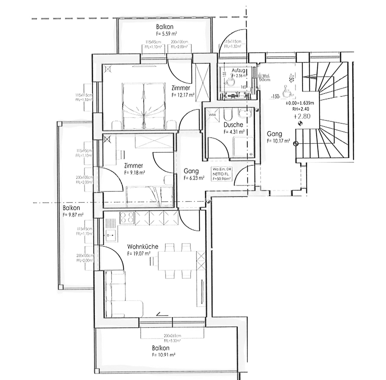
Superficie abitabile:
52,85 m²
Stanze:
3
Camere da letto:
2
Bagni:
1
Balconi:
3

Efficenza energetica

fonte di energia:
teleriscaldamento
Riscaldamento:
riscaldamento a pavimento
Descrizione:
Questo esclusivo appartamento di nuova costruzione al 1° piano combina il massimo comfort abitativo con uno stile di vita alpino e offre il rifugio ideale per chi vuole evadere dalla vita quotidiana. Immerso in un contesto da sogno fatto di paesaggi invernali innevati e ampi paradisi escursionistici e naturali, l'appartamento è perfetto come seconda casa per chi cerca il relax e per gli amanti della natura.

L'appartamento ha una superficie lorda di circa 65,21 m² e tre balconi di circa 26,37 m², che invitano a trascorrere ore rilassanti all'aperto, sia dopo una giornata di sci nel Paese delle Meraviglie invernali che dopo una lunga escursione sulle montagne circostanti. Un vano cantina di circa 6,8 m² è incluso nel prezzo di acquisto e offre ulteriore spazio di archiviazione.

Caratteristiche di alta qualità come il pavimento in rovere pregiato, il riscaldamento a pavimento tramite teleriscaldamento, la porta blindata, le finestre in legno-alluminio con triplo vetro e l'ascensore sottolineano l'elevato standard abitativo e garantiscono un ambiente confortevole tutto l'anno.

Che si tratti di un rifugio elegante per rilassanti fine settimana, di una seconda casa alpina o di un investimento stabile, questo appartamento combina natura, tranquillità e qualità ai massimi livelli.

Prezzi dei garage:
- Garage singolo: € 30.000
- Garage doppio: € 60.000
Posizione:
Plan/Pfelders è un idilliaco villaggio di montagna nella retrostante Val Passiria, in Alto Adige, ed è un vero e proprio insider tip per gli amanti della natura, per chi cerca pace e tranquillità e per gli intenditori delle Alpi. Immerso in un impressionante paesaggio di alta montagna a circa 1.600 metri sul livello del mare, Pfelders offre una qualità di vita eccezionale in qualsiasi periodo dell'anno.

In inverno, il villaggio si trasforma in un vero e proprio paese delle meraviglie: piste innevate, piste da sci di fondo, tour sugli sci, sentieri escursionistici invernali e possibilità di slittino partono proprio dalla porta di casa. Lontano dal turismo di massa, residenti e ospiti godono di un'autentica tranquillità alpina e di un'atmosfera familiare.

In estate, Pfelders è una rinfrescante località di montagna estiva: temperature gradevoli, aria limpida di montagna e una vasta rete di sentieri escursionistici e ciclabili rendono la regione ideale per il tempo libero attivo. Escursioni alpine, tour in alta montagna nel Parco Naturale del Gruppo di Tessa e numerose esperienze nella natura offrono varietà e relax allo stesso tempo.

Nonostante la sua posizione tranquilla e naturale, Pfelders è facilmente accessibile e fa parte del comune di Moos in Passiria. La combinazione di natura incontaminata, alta qualità della vita e valore ricreativo durante tutto l'anno rende Pfelders una località particolarmente attraente per seconde case, proprietà per le vacanze e abitazioni permanenti.

Distanze:
Merano: circa 45 km | circa 1:00 h
Bolzano: ca. 75 km | ca. 1:30 h
Monaco di Baviera: circa 300 km | circa 4:30-5:00 h
Zurigo: circa 280 km | circa 4:30-5:00 h
Milano: circa 330 km | circa 4:00-4:30 h

Persona di contatto

Agenzia:
Benedetti Real Service | Christie's International Real Estate
Nome:
Sophia Biasi 
Via:
Via Leonardo da Vinci Strasse 9
Luogo:
39012 Merano
Telefono:
00390473236613
Fax:
00390473231296
Mail:
bs@irs-benedetti.com
Website:
www.irs-benedetti.com
Contatta l'agente