Affascinante casa a schiera con giardino in posizione tranquilla

MeranoMaia Bassa
950.000 €

informazioni generali

Riferimento:
2056
Contratto:
acquisto
Proprietà:
Casa
Piano:
5
Totale piani:
5
ascensore:
solo per residenti:
no
Prezzo di acquisto:
950.000,00 €
Provvigione più IVA:
4% + IVA

Superfici e caratteristiche

Stanze:
5
Camere da letto:
3
Bagni:
3
WC separati:
1
Balconi:
2
Terrazze:
1
Posti auto:
2

Efficenza energetica

anno di costruzione:
1992
fonte di energia:
gas
Descrizione:
In una delle zone residenziali più ricercate di Merano, in una posizione tranquilla ma piacevolmente centrale, si trova questa curata casa di media grandezza - una casa ideale per le famiglie che apprezzano lo spazio, il comfort e la qualità della vita.

L'immobile si sviluppa su quattro piani e colpisce per la disposizione degli ambienti ben studiata e per le zone giorno luminose e accoglienti.

Al piano terra si è accolti da un'invitante zona d'ingresso con WC diurno e disimpegno. Il cuore della casa è l'ampia zona giorno con cucina semiaperta e un accogliente caminetto: un luogo dove trascorrere il tempo con la famiglia e gli amici. Da qui si accede direttamente al giardino privato, che invita a rilassarsi e a soffermarsi. Di fronte all'ingresso si trova un'altra area verde, anch'essa di proprietà della casa, che offre un ulteriore spazio aperto.

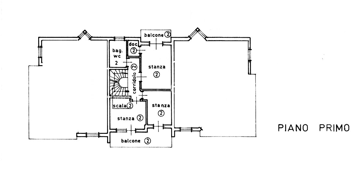
Al primo piano si trovano tre camere da letto. Due di esse sono esposte a sud-ovest e godono del sole per tutto il giorno. Una di queste camere ha il proprio bagno e un balcone privato. Un altro bagno su questo piano offre ulteriore comfort a tutta la famiglia.

Il primo piano ospita una spaziosa mansarda che può essere utilizzata in vari modi: come deposito, sala hobby o rifugio individuale.

Nel seminterrato si trovano due spaziosi locali cantina, uno dei quali è dotato di doccia e lavabo. Questo livello è completato dal locale caldaia e dall'accesso diretto al garage privato. C'è anche un'altra uscita per un secondo posto auto nel garage comune.

Questa casa a schiera combina un'atmosfera tranquilla con una posizione centrale e offre spazio sufficiente per tutta la famiglia - un'opportunità ideale per chi cerca una casa confortevole con giardino a Merano.
Posizione:
L'immobile si trova in una tranquilla e ricercata zona residenziale di Merano, che colpisce per la sua posizione centrale ma piacevolmente appartata. L'area circostante è caratterizzata da edifici residenziali ben curati e da tanto verde, che garantiscono una qualità di vita particolarmente elevata.

Il centro storico con i suoi negozi, caffè e ristoranti è facilmente raggiungibile. Nelle immediate vicinanze si trovano anche scuole, asili, negozi e trasporti pubblici. Numerose piste ciclabili e pedonali e il famoso lungomare delle terme invitano a praticare attività ricreative all'aperto.

La combinazione di infrastrutture urbane e ambiente di vita tranquillo rende questa località particolarmente attraente per le famiglie e per tutti coloro che desiderano vivere vicino al centro e in un'atmosfera rilassata.
Altre informazioni:
Tutte le informazioni riportate sono indicative e possono essere soggette a modifiche e/o ricalcoli.

Persona di contatto

Agenzia:
Real Estate | Valuation | Advisory | Brokerage
Nome:
Heidi Benedetti RE srl | Christie's International Real Estate 
Via:
Via Leonardo da Vinci 9
Luogo:
39012 Meran
Telefono:
00390473236613
Fax:
00390473231296
Mail:
web@irs-benedetti.com
Website:
www.irs-benedetti.com
Contatta l'agente