Werkstatt in zentraler Lage

BrixenStadtzentrum
2.500 €

allgemeine Informationen

Immobiliennr.:
BX13799
Vermarktungsart:
Miete
Immobilienart:
Halle/Lager/Produktion (Werkstatt)
Etage:
-1
Gesamtetagen:
-1
Fahrstuhl:
Nein
Nettokaltmiete:
2.500,00 €

Flächen und Ausstattung

Nutzfläche:
380,00 m²
sep. WC:
1

Energieeffizienz

Energiequelle:
Fernwärme
Energieklasse:
G
Objektbeschreibung:
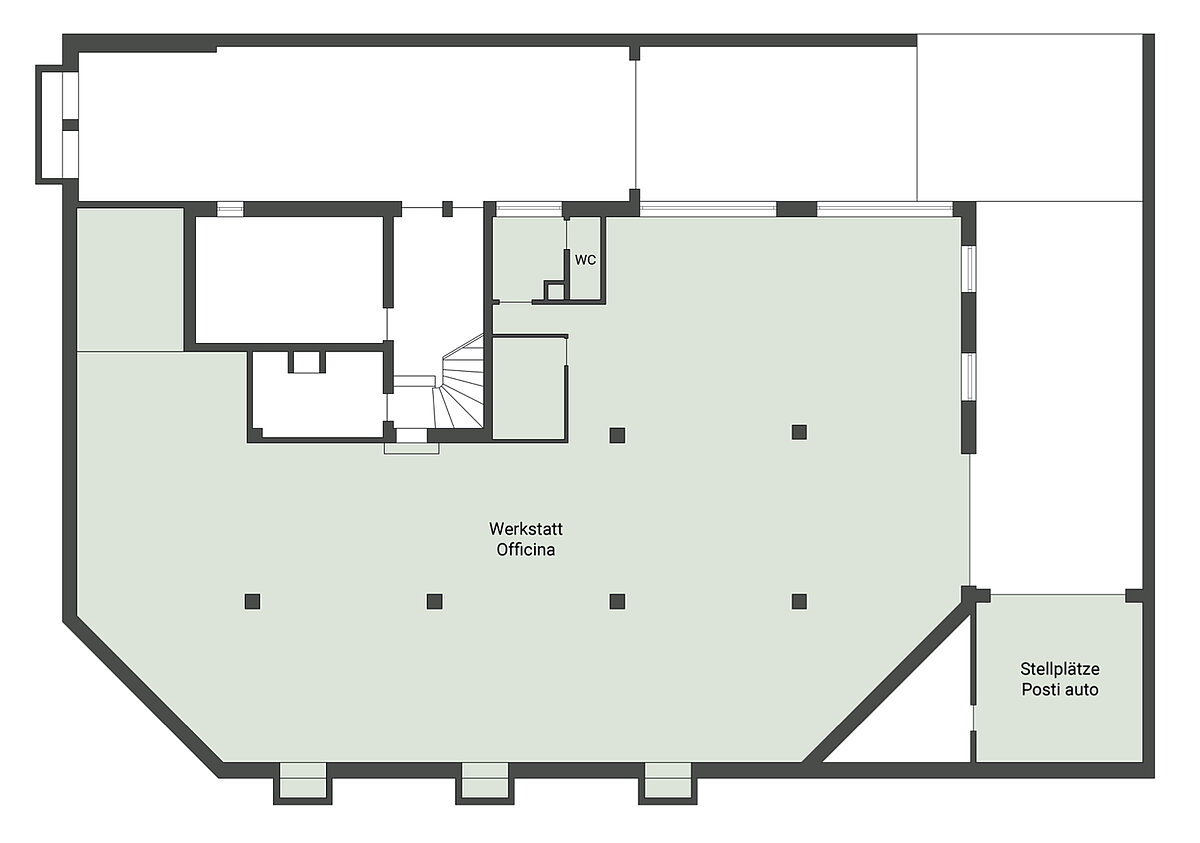
Diese Werkstatt befindet sich in zentraler Lage in Brixen. Sie hat eine Raumhöhe von 2,6–3,1 m und verfügt zudem über ein Büro, ein WC sowie zwei überdachte Stellplätze.

Kontaktperson

Firma:
Castellanum Srl
Name:
Castellanum Brixen - Bressanone 
Straße:
Via Tratten 7
Ort:
39042 Bressanone
Telefon:
00390472201250
Faxnummer:
00390472201242
E-Mail:
brixen@castellanum.it
Website:
www.castellanum.it
Kontaktperson
Mitteilung senden