Workshop in a central location

Bressanonetown center
2.500 €

general

object number external:
BX13799
marketing method:
rent/lease
property:
Warehouse (workshop)
floor:
-1
amount of floors:
-1
elevator:
no
net rent:
2.500,00 €

Areas and amenities

Floor space:
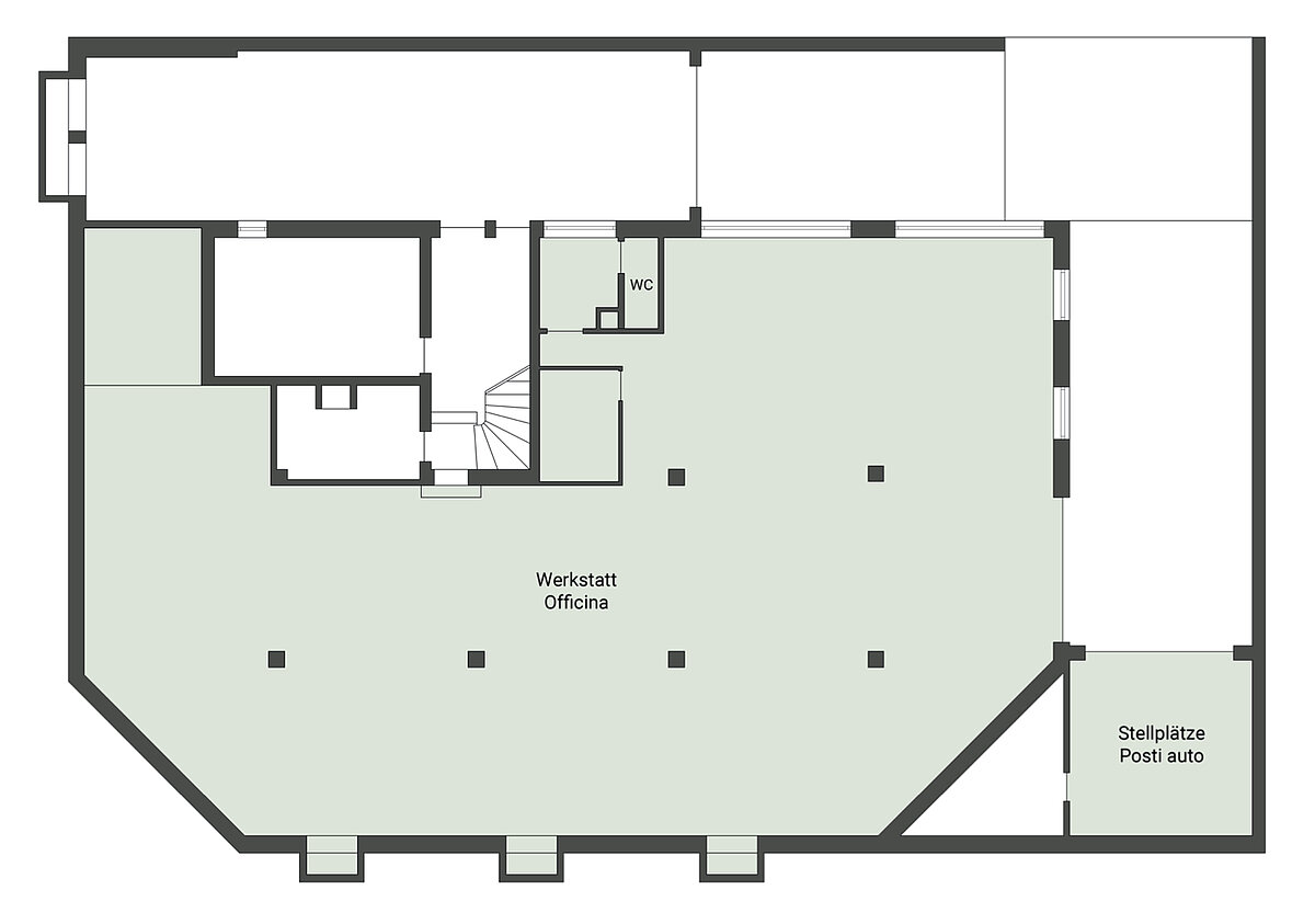
380,00 m²
Number of sep. bathrooms:
1

Energetic efficiency

energy source:
district heating
energy class:
G
Description:
This workshop is centrally located in Bressanone. It has a ceiling height of 2.6–3.1 meters and also has an office, a toilet and two covered parking spaces.

Contact person

Company:
Castellanum Srl
Name:
Castellanum Brixen - Bressanone 
Street:
Via Tratten 7
Place:
39042 Bressanone
Phone:
00390472201250
Fax number:
00390472201242
Email:
brixen@castellanum.it
Website:
www.castellanum.it
Kontaktperson
Direct message