Sonnige 4-Zimmerwohnung mit Balkon - W14

Sand in TaufersAhornach
auf Anfrage

allgemeine Informationen

Immobiliennr.:
3827
Vermarktungsart:
Kauf
Immobilienart:
Wohnung
Etage:
3
Gesamtetagen:
3
Fahrstuhl:
Ja
nur für Ansässige:
Ja
Provision zzgl. MwSt.:
3%

Flächen und Ausstattung

Wohnfläche:
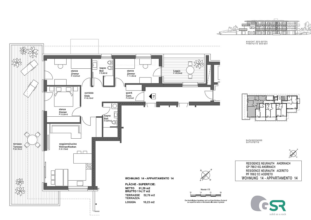
91,29 m²
Balkon-, Terrassenfläche:
52,78 m²
Kellerfläche:
6,00 m²
Verkaufsfläche:
131,50 m²
Zimmer:
4
Schlafzimmer:
3
Badezimmer:
2
Terrassen:
1
Stellplätze:
1

Energieeffizienz

Baujahr:
2024
Energiequelle:
Luftwp
Heizung:
Fußbodenheizung
Objektbeschreibung:
Sonnige 4-Zimmerwohnung mit Balkon im Neubauprojekt "Neurauth" in Ahornach zum Verkauf.

Diese 4-Zimmerwohnung befindet sich im 2. Obergeschoss eines Neubauprojekts in traumhaft ruhiger und sonniger Lage von Ahornach mit 14 Wohneinheiten. Sie besteht aus einem Wohn-/Esszimmer mit Kochecke, 3 Schlafzimmern, einem Badezimmer und einem Tages-WC. Auf der sonnigen Terrasse kann man wunderbar das Bergpanorama genießen.

Ein Kellerabteil ist im Preis inklusive.
Garagenabstellplätze können gegen einen Aufpreis von € 30.000 pro Garage erworben werden.

Bei diesem Objekt handelt es sich um eine Wohnung für Ansässige laut Art. 39, Landesgesetz 9/2018.

Baujahr: Herbst 2024
Fertigstellung: Herbst 2025
Klimahaus A-Nature
Lage:
SAND IN TAUFERS
Sand in Taufers liegt im Herzen des Tauferer Ahrntales, hat knappe 5.000 Einwohner und umfasst die Ortschaften Rein in Taufers, Kematen, Mühlen in Taufers, Ahornach und den Hauptort “Sand“. Überragt wird die Ortschaft von der mittelalterlichen Burg Taufers, eine der mächtigsten Anlagen des Landes.
Die Gemeinde liegt im Naturpark Rieserferner-Ahrn und ist umzingelt von den 80 Dreitausendern des Tauferer Ahrntales. Ein Besuch auf Schloss Taufers oder eine Wanderung zu den Reinbachfällen sind auf jeden Fall ein Ausflug wert.

Kontaktperson

Firma:
Immobilien Niederkofler GmbH
Name:
Fabian Mair unter der Eggen 
Straße:
Galileo Galilei 6
Ort:
39031 Bruneck
Telefon:
0039335440891
E-Mail:
fabian@immobil-niederkofler.it
Kontaktperson
Mitteilung senden