Sunny 4-room apartment with balcony in the new construction project "Neurauth" - W14

Campo TuresAcereto
on request

general

object number external:
3827
marketing method:
purchase
property:
flat
floor:
3
amount of floors:
3
elevator:
yes
reserved for residents:
yes
broker's fee plus VAT:
3%

Areas and amenities

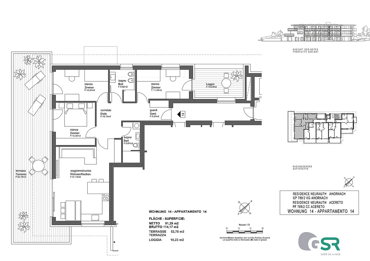
living space:
91,29 m²
balconies/terrace space:
52,78 m²
cellar space:
6,00 m²
Sales space:
131,50 m²
Number of Rooms:
4
Number of bedrooms:
3
Number of bathrooms:
2
number of terraces:
1
number of parking spaces:
1

Energetic efficiency

construction year:
2024
energy source:
air heat pump
heating:
underfloor heating
Description:
Sunny 4-room apartment with balcony in the new construction project "Neurauth" in Acereto for sale.

This 4-room apartment is located on the first floor of a new construction project in a fantastically quiet and sunny location of Acereto with 14 residential units. It consists of a living/dining room with kitchenette, 3 bedrooms, a bathroom and a WC. The sunny balcony is ideal to enjoy the panoramic view on the mountains.

A cellar is included in the price.
Garage parking spaces can be purchased at an additional charge of € 30,000 per garage.

This property is an apartment for residents according to Art. 39, Provincial Law 9/2018.

Year of construction: autumn 2024
Completion: expected autumn 2025
Climate house A-Nature
Location:
SAND IN TAUFERS
Sand in Taufers is located in the heart of Ahrntal, has 5.000 inhabitants and includes the villages of Rein in Taufers, Kematen, Mühlen in Taufers, Ahornach and the capital of "Sand".
The community lies in the Rieserferner-Ahrn and is surrounded by the 80 mountains with a height of over three-thousand meters. A visit to the Castle Taufers or a walk to the waterfalls of Rein are definitely worth a trip.

Contact person

Company:
Immobilien Niederkofler GmbH
Name:
Fabian Mair unter der Eggen 
Street:
Galileo Galilei 6
Place:
39031 Bruneck
Phone:
0039335440891
Email:
fabian@immobil-niederkofler.it
Kontaktperson
Direct message