W3: Ampio quadrilocale duplex con due terrazze, primo piano

BolzanoBolzano
720.000 €

informazioni generali

Riferimento:
21569
Contratto:
acquisto
Proprietà:
Casa
Piano:
2
Totale piani:
2
ascensore:
no
solo per residenti:
no
Prezzo di acquisto:
720.000,00 €

Superfici e caratteristiche

Superficie totale:
146,00 m²
Stanze:
5
Camere da letto:
3
Bagni:
3
Terrazze:
1

Efficenza energetica

anno di costruzione:
2025
Descrizione:
Proponiamo in vendita un nuovo e ampio appartamento quadrilocale duplex con due terrazze, situato in via Druso, vicina al centro e ottimamente collegata a tutti i servizi.

L’unità si trova in un edificio recentemente ristrutturato secondo lo standard CasaClima A, che garantisce efficienza energetica a lungo termine, bassi costi di gestione e un valore stabile nel tempo.

L’appartamento è funzionalmente suddiviso in:


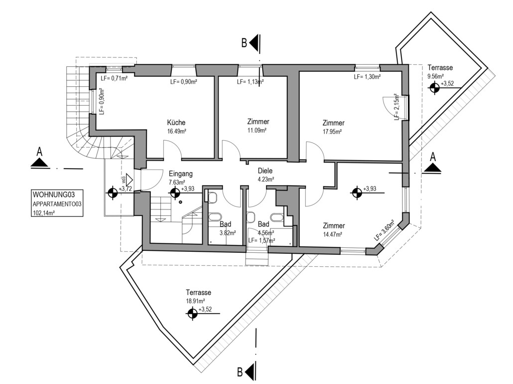
1° piano
- Ingresso, soggiorno, cucina, 2 camere da letto, 2 bagni (di cui uno con finestra) e 2 terrazze
 
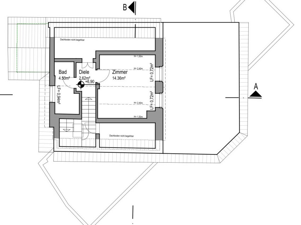
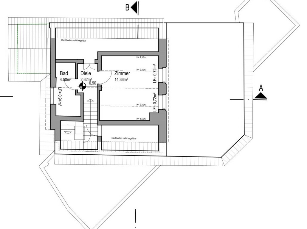
Sottotetto
- Camera da letto, bagno con finestra


L’appartamento dispone inoltre di un posto auto nel cortile interno.

Attraverso l’ampio cortile interno si accede direttamente all’appartamento. È inoltre possibile acquistare separatamente un posto auto al prezzo di 50.000,00 €.

Punti di forza & Vantaggi per investitori



Posizione centrale con negozi, servizi e mezzi pubblici facilmente raggiungibili


CasaClima A: ristrutturazione energetica, bassi costi di gestione, costruzione sostenibile


Uso flessibile: ideale come investimento a lungo termine o futura abitazione propria


Ottime possibilità di parcheggio: due posti auto accatastati più ulteriore spazio nel cortile



Questo appartamento unisce posizione strategica, efficienza energetica e redditività sicura – un’opportunità rara per acquistare un’unità immobiliare ampia e moderna in una delle zone più richieste di Bolzano.


Maggiori informazioni qui: https://www.ruth-immobilien.com/it/immobile/w3-ampio-quadrilocale-duplex-con-due-terrazze-primo-piano_21569

Ruth Immobilien
Waltherplatz 2 / Piazza Walther
39100 Bozen / Bolzano
Tel. +39 0471 090790

Persona di contatto

Agenzia:
RUTH Immobilien GmbH
Nome:
Ruth Immobilien GmbH - Sitz Bozen 
Via:
Waltherplatz 2
Luogo:
39100 Bozen
Mail:
info@ruth-immobilien.com
Kontaktperson
Contatta l'agente