Villnöss 3Zi Wohnung umzubauen

FunesSan Pietro
175.000 €

informazioni generali

Riferimento:
24_03
Contratto:
acquisto
Proprietà:
appartamento
ascensore:
no
solo per residenti:
no
Prezzo di acquisto:
175.000,00 €

Superfici e caratteristiche

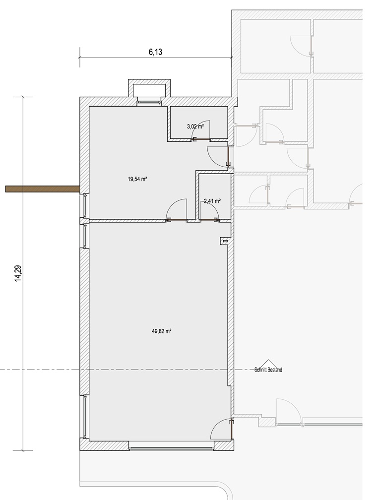
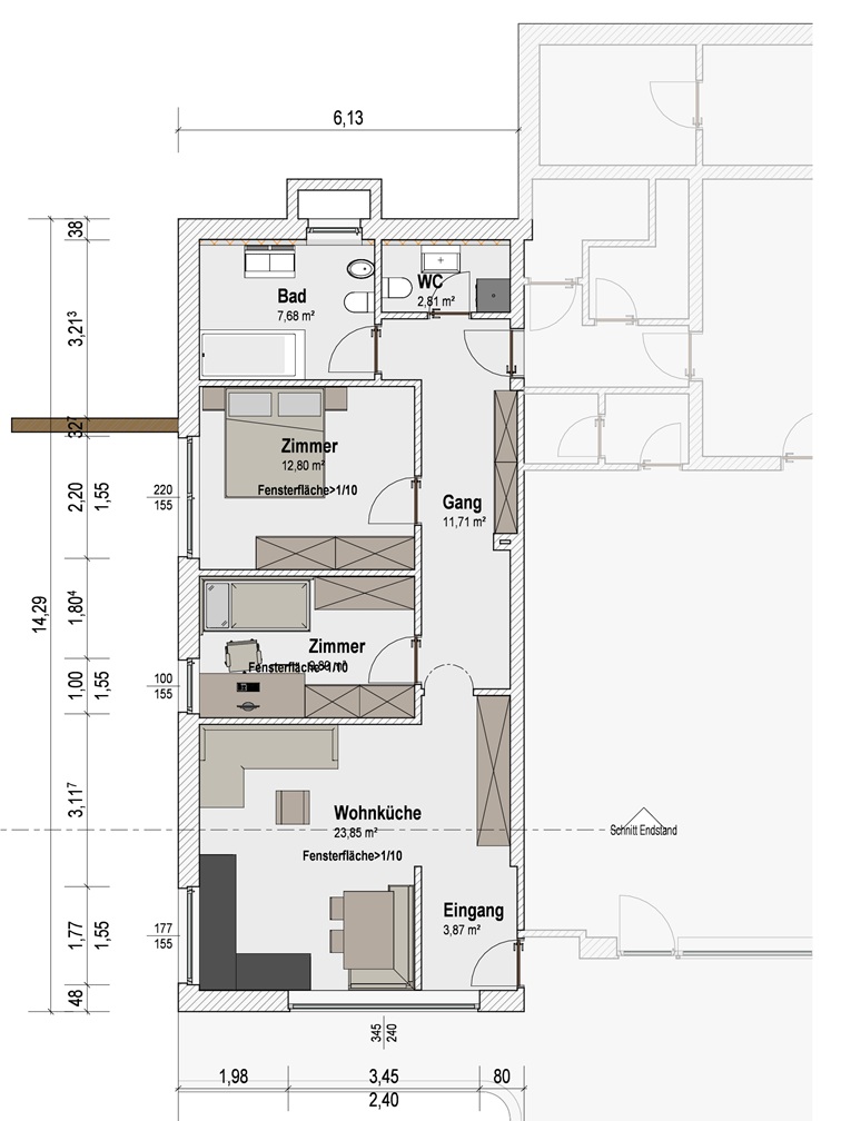
Superficie abitabile:
75,00 m²
Stanze:
1
Bagni:
1

Efficenza energetica

stato dell'immobile:
ristrutturazione parziale/totale richiesta
classe energetica:
G
Descrizione:
In una comoda posizione a San Pietro - Pizack, è in vendita un immobile (CE-G) che può essere trasformato in un appartamento convenzionato. A tale scopo è disponibile una superficie netta di circa 75 m² al piano terra, con orientamento principale verso sud.

Il prezzo di vendita indicato si riferisce all'immobile nello suo stato originario di negozio. Se l'immobile dovesse essere trasformato in un appartamento, anche i relativi costi saranno a carico del futuro proprietario. Inpiù saranno da sostenere dall' aquirente le spese per i lavori di ristrutturazione energetica dell'immobile, anch'essi iniziati nel frattempo, le quali però in parte sono detraibili risp. ammissibili a sovvenzioni.

Proposta salvo errore e disponibilità. Tutti i dettagli, in particolare la superficie, le dimensioni e i prezzi sono senza garanzia.

Persona di contatto

Agenzia:
dorfmann immobilien
Nome:
Norbert DORFMANN 
Via:
Tinneplatz 15
Luogo:
39043 Klausen / Chiusa
Telefono:
00393356526421
Mail:
info@dorfmann.biz
Contatta l'agente