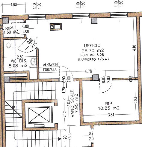
Ufficio / Studio moderno in edificio direzionale

Cortaccia s.s.d.v.Cortaccia s.s.d.v.
160.000 €

informazioni generali

Riferimento:
HGI 021-3
Contratto:
acquisto
Proprietà:
Uffici / Studi professionali
Piano:
1
Totale piani:
1
ascensore:
arredato:
parzialmente
Prezzo di acquisto:
160.000,00 €

Superfici e caratteristiche

Superficie abitabile:
46,00 m²
Superficie di magazzino:
1,00 m²
Superficie totale:
57,90 m²
Stanze:
1
WC separati:
1

Efficenza energetica

anno di costruzione:
2004
stato dell'immobile:
curato
fonte di energia:
gas
Riscaldamento:
riscaldamento centralizzato
classe energetica:
Legge90A4
Descrizione:

In vendita interessante spazio ad uso ufficio o studio professionale di circa 60 m², situato al primo piano di un elegante edificio direzionale in posizione strategica.

L’immobile è ideale come ufficio, studio, agenzia, ambulatorio o spazio per attività professionali.

Caratteristiche principali:

Superficie di circa 60 m²

Primo piano con ascensore

Posto auto incluso

Riscaldamento e raffrescamento centralizzati

Videocitofono

Impianto di videosorveglianza

Contesto professionale e curato

Posizione interessante e facilmente raggiungibile

L’edificio offre un’infrastruttura moderna e un ambiente rappresentativo, comodo sia per clienti che per collaboratori. La flessibilità degli spazi consente diversi tipi di utilizzo professionale.

Conclusione:
Una soluzione funzionale e sicura in una posizione di valore, ideale per professionisti, imprenditori o come investimento.



(Ref. HGI 021-3)
Contatta l'agente