Diese Webseite verwendet Cookies, um den bestmöglichen Service zu gewährleisten. Durch die weitere Nutzung dieser Webseite stimmen Sie der Cookie-Nutzung zu.
Weiterlesen.
Akzeptieren
preferiti
IT
scegli lingua
scegli lingua
Deutsch
Italiano
English
offerta
residenziale
commerciale
chi siamo
immoreal.it
il tuo agente
comperare immobili
vendere immobile
service
Associazione Agenti Immobiliari Alto Adige
glossario immobiliare
contatto
offerta
immobile
Uffici in posizione strategica
Bressanone
zona industriale
1.050 €
Indietro
memorizza
raccomanda
Richiesta
visualizza 4 foto
108.00
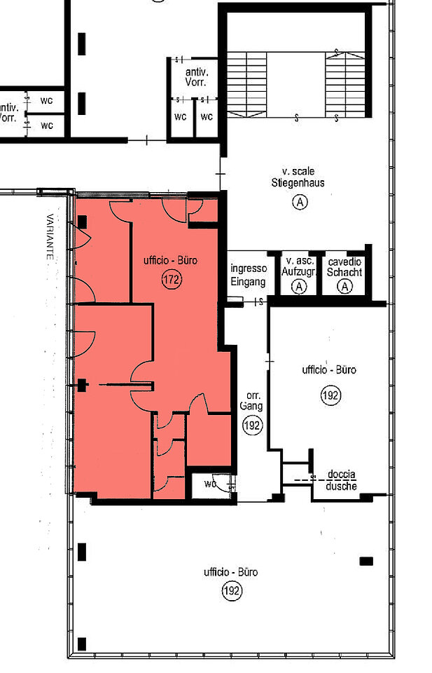
Piante
informazioni generali
Riferimento:
BX13537
Contratto:
affitto
Proprietà:
Uffici / Studi professionali
Piano:
3
Totale piani:
3
ascensore:
sì
affitto netto:
1.050,00 €
Superfici e caratteristiche
Superficie utile:
90,00 m²
Superficie di vendita:
108,00 m²
WC separati:
1
Indietro
memorizza
raccomanda
Richiesta
Descrizione:
Uffici in affitto nel parco commerciale Syncom. È possibile di affittare ulteriori posti auto in garage.
Persona di contatto
Agenzia:
Castellanum Srl
Nome:
Castellanum Brixen - Bressanone
Via:
Via Tratten 7
Luogo:
39042 Bressanone
Telefono:
00390472201250
Fax:
00390472201242
Mail:
brixen@castellanum.it
Website:
www.castellanum.it
Contatta l'agente
Prenota una visita