Trilocale ristrutturato in stile moderno a Caldaro con balcone

Caldaro s.s.d.v.Caldaro s.s.d.v.
340.000 €

informazioni generali

Riferimento:
HA143
Contratto:
acquisto
Proprietà:
appartamento
Piano:
1
Totale piani:
1
ascensore:
no
arredato:
completamente
solo per residenti:
no
Prezzo di acquisto:
340.000,00 €

Superfici e caratteristiche

Superficie abitabile:
69,00 m²
Superficie totale:
87,00 m²
Stanze:
2
Bagni:
1
Balconi:
1

Efficenza energetica

anno di costruzione:
2023
stato dell'immobile:
nuovo
fonte di energia:
gas
Riscaldamento:
riscaldamento
Descrizione:

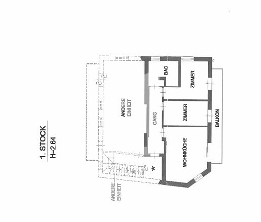
È in vendita un appartamento trilocale a Caldaro con circa 69 m² di superficie abitabile. Si trova al primo piano di un piccolo edificio con sole cinque unità abitative ed è stato completamente ristrutturato nel 2023.

Il riscaldamento è autonomo a gas, con pannelli radianti a parete. La cucina è di alta qualità ed è dotata di elettrodomestici Miele. Dal balcone si gode di una vista panoramica.

L’appartamento è libero e senza vincoli. Non sono presenti cantina né un posto auto assegnato; attualmente il parcheggio nel cortile è tollerato.



(Ref. HA143)
Contatta l'agente