Terreno edificabile per una casa indipendente per residenti

ValdaoraValdaora di Mezzo
320.000 €

informazioni generali

Riferimento:
5355
Contratto:
acquisto
Proprietà:
Casa
ascensore:
no
solo per residenti:
Prezzo di acquisto:
320.000,00 €
Provvigione più IVA:
3%

Superfici e caratteristiche

Superficie abitabile:
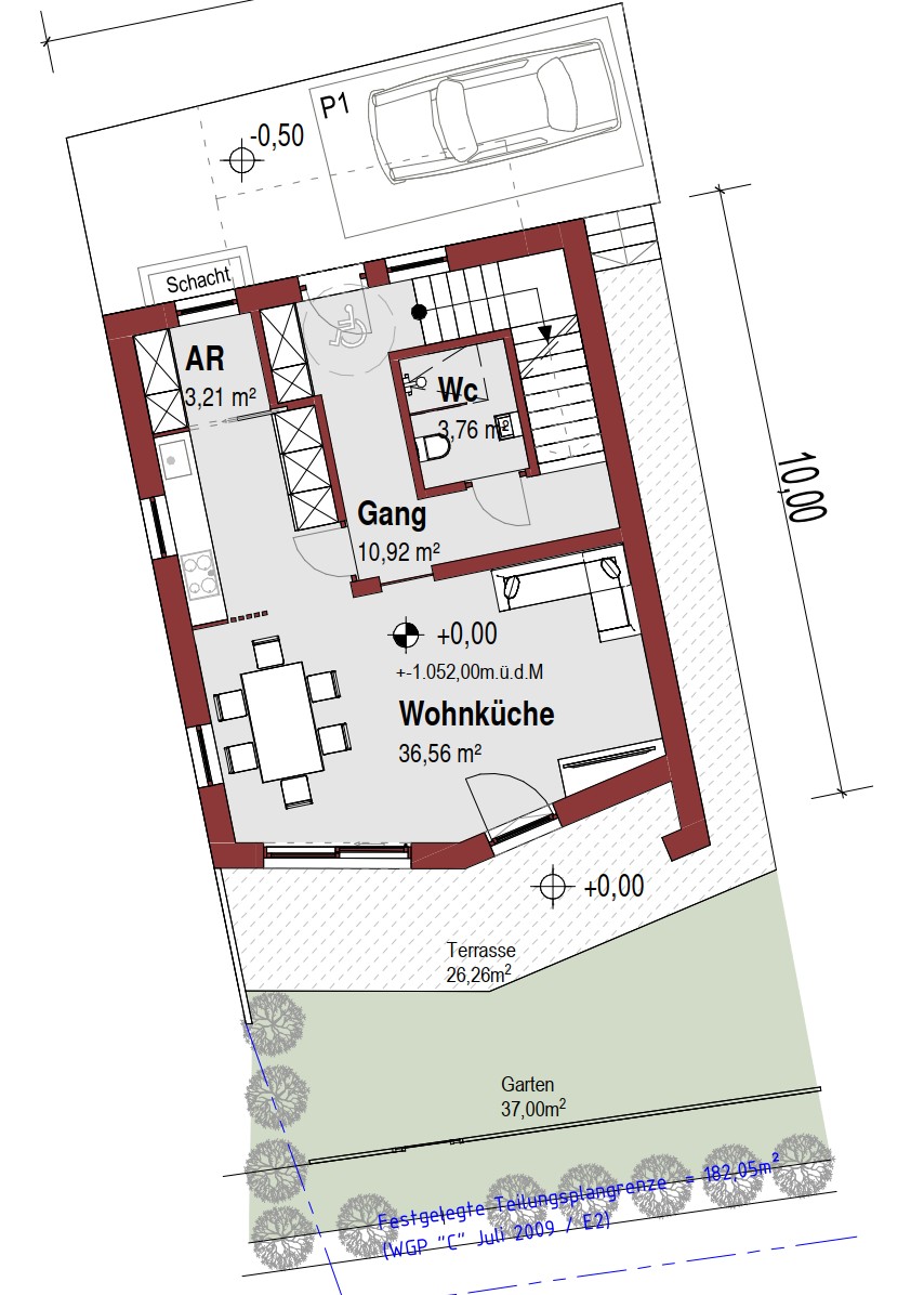
110,00 m²
Superficie balconi/terrazze:
26,26 m²
Superficie giardino:
37,00 m²
Superficie cantina:
31,95 m²
Superficie di vendita:
158,00 m²
Superficie del terreno:
204,95 m²
Stanze:
4
Camere da letto:
3
Bagni:
2
Terrazze:
1
Posti auto:
2

Efficenza energetica

fonte di energia:
teleriscaldamento
Descrizione:
Terreno edificabile a Valdaora di Mezzo per residenti - la vostra casa unifamiliare al centro

Questo terreno edificabile di 205 mq per residenti è in vendita nel centro di Valdaora/Olang. Il terreno offre le condizioni ideali per la realizzazione di un progetto residenziale individuale. Sul lotto è possibile costruire un'unità abitativa che si estende su due piani fuori terra e un seminterrato. Questo è già previsto nel piano di attuazione.
Per una migliore comprensione è stato commissionato uno studio di fattibilità.

La cubatura consentita fino a 500 m³ permette di progettare un edificio residenziale spazioso che si inserisce armoniosamente nell'ambiente circostante. L'altezza massima dell'edificio di 8,5 metri garantisce uno sviluppo equilibrato e si integra perfettamente con il paesaggio urbano e paesaggistico esistente.

Questo terreno edificabile è ideale per proprietari-occupanti o investitori che apprezzano la qualità abitativa e la pianificazione sostenibile.
Posizione:
Grazie all'eccellente posizione a Valdaora, i futuri proprietari potranno godere della vicinanza all'impressionante mondo alpino, alle strutture per il tempo libero e lo sport, nonché di un'ottima infrastruttura con negozi, scuole e trasporti pubblici.

Persona di contatto

Agenzia:
Immobilien Niederkofler GmbH
Nome:
André Benedict Niederkofler 
Via:
Galileo Galilei 6
Luogo:
39031 Bruneck
Telefono:
00390474410400
Mail:
info@immobil-niederkofler.it
Website:
www.immobil-niederkofler.it
Contatta l'agente