Terreno edificabile con progetto approvato

ParcinesParcines
1.000.000 €

informazioni generali

Riferimento:
319
Contratto:
acquisto
Proprietà:
Terreno
ascensore:
no
solo per residenti:
no
Prezzo di acquisto:
1.000.000,00 €
Provvigione più IVA:
3%

Superfici e caratteristiche

Superficie abitabile:
563,00 m²
Superficie del terreno:
723,00 m²

Efficenza energetica

fonte di energia:
gas
Riscaldamento:
riscaldamento a pavimento
Descrizione:
Esclusivo terreno edificabile con progetto approvato in una posizione da sogno a Parcines.

In una delle zone residenziali più ricercate di Parcines è in vendita un terreno edificabile unico nel suo genere, con un progetto già approvato per un edificio residenziale di alta qualità con 6 attraenti appartamenti con cantina e 12 garage.

Questa proprietà offre sia ai costruttori privati che agli investitori una rara opportunità:
la perfetta combinazione di qualità della posizione, autorizzazione edilizia e libertà di progettazione individuale.

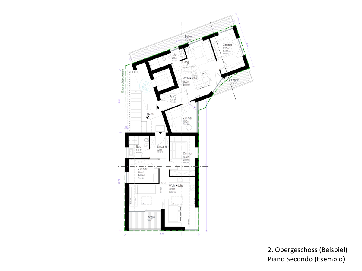
Le unità abitative previste:
- appartamento 1: circa 71 m²
- appartamento 2: circa 67 m²
- appartamento 3: circa 57 m²
- appartamento 4: circa 66 m²
- appartamento 5: circa 56 m²
- appartamento 6: circa 66 m²

Sono possibili modifiche al progetto approvato, in modo da poter realizzare concetti abitativi individuali come per esempiouna villa, una casa, una casa bifamiliare oppure un lo sviluppao di un attraente progetto immobiliare
Descrizione dell'attrezzatura:
I punti di forza in un'occhiata:
- zona di edilizia residenziale B2 - zona di ampliamento
- superficie del lotto: 723 m²
- volume edificabile: 1.160,45 m³
- superficie da convenzionare: 742,69 m³

- progetto edilizio approvato - realizzabile immediatamente !!

- tutti gli orientamenti possibili
- posizione tranquilla e soleggiata con splendida vista sulle montagne
- a pochi minuti da Merano, Naturno e Marlengo
- ottime infrastrutture: scuole, negozi, trasporti pubblici nelle immediate vicinanze

Ideale per:
- investitori alla ricerca di un progetto pronto da costruire
- famiglie con il sogno di una casa per più generazioni
- costruttori/ sviluppatori privati che desiderano combinare l'abitare e l'affittare
- Albergatori, come alloggi per il personale del proprio hotel
- Imprenditori, appartamenti per i propri dipendenti

La qualità della posizione incontra la sicurezza della pianificazione:
approfittate di questa rara opportunità a Parcines e create uno spazio abitativo di alta qualità in una delle zone più vivibili dell'Alto Adige.

SITUAZIONE DEL PROPRIETARIO
L'immobile in vendita è di proprietà privata di una persona fisica. La vendita è soggetta all'imposta di registro.


Saremo lieti di inviarvi ulteriori informazioni e planimetrie o di fissare un appuntamento per una visita personale in loco.

Persona di contatto

Agenzia:
Marcello & Wieser Immobiliare Immobilien GmbH
Nome:
Florian Wieser 
Via:
Pfarrgasse 19
Luogo:
39012 Merano / Meran
Telefono:
00393474019997
Mail:
info@marcello-wieser.it
Website:
www.marcello-wieser.it
Kontaktperson
Contatta l'agente