Spaziosa maisonette con terrazza e garage

GargazzoneGargazzone
450.000 €

informazioni generali

Riferimento:
2034
Contratto:
acquisto
Proprietà:
appartamento
Piano:
3
Totale piani:
3
ascensore:
solo per residenti:
no
Prezzo di acquisto:
450.000,00 €
Provvigione più IVA:
4% + IVA

Superfici e caratteristiche

Superficie abitabile:
98,00 m²
Stanze:
3
Camere da letto:
2
Bagni:
1
Terrazze:
1

Efficenza energetica

anno di costruzione:
2000
fonte di energia:
gas
Descrizione:
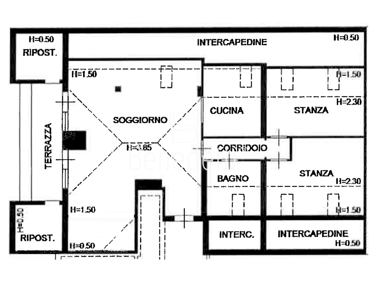
Questo affascinante appartamento mansardato dal design a maisonette colpisce per il suo particolare carattere abitativo con pavimenti in legno di alta qualità e travi a vista, che creano un'atmosfera calda e invitante.

L'appartamento si trova al terzo e ultimo piano e offre una disposizione degli ambienti ben studiata:

Un ampio e luminoso soggiorno con angolo cottura e accesso diretto alla terrazza, ideale per trascorrere ore di relax all'aperto. Due pratici ripostigli a sinistra e a destra della terrazza offrono ulteriore spazio di archiviazione. Due ampie camere da letto e un bagno con lucernari.
Al 1° piano seminterrato si trova un locale cantina separato e al 2° piano seminterrato si trova un garage di circa 22 m², facilmente accessibile.

L'appartamento è ideale per famiglie, coppie con esigenze di spazio o come appartamento per le vacanze. Grazie alla pianta aperta e alla scelta naturale dei materiali, offre anche ottime opportunità per uno stile di arredamento individuale e personalizzabile.
Posizione:
L'appartamento si trova nel centro di Gargazzone, direttamente sulla strada principale, e vanta ottimi collegamenti con i mezzi di trasporto ed è vicino a tutti i servizi quotidiani. Negozi, bar, ristoranti, farmacia, banca, asilo e scuola sono facilmente raggiungibili a piedi.

Grazie alla sua posizione strategica tra Bolzano e Merano, Gargazzone è un luogo ideale per i pendolari. Il collegamento con l'autostrada MeBo e la stazione ferroviaria consentono di raggiungere facilmente i paesi e le città circostanti.

Nonostante la posizione centrale, l'area circostante offre un elevato valore ricreativo e di svago. Le piste pedonali e ciclabili, gli spazi verdi e la vicinanza al fiume Adige sono ideali per praticare attività sportive e ricreative all'aperto. La posizione soleggiata nella Valle dell'Adige garantisce inoltre un clima piacevole.
Altre informazioni:
Tutte le informazioni sono indicative e possono essere soggette a modifiche in qualsiasi momento.

Persona di contatto

Agenzia:
Benedetti Real Service | Christie's International Real Estate
Nome:
Sophia Biasi 
Via:
Via Leonardo da Vinci Strasse 9
Luogo:
39012 Merano
Telefono:
00390473236613
Fax:
00390473231296
Mail:
bs@irs-benedetti.com
Website:
www.irs-benedetti.com
Contatta l'agente