Seminuovo QUADRILOCALE - Residence Erna

BressanoneBressanone
640.000 €

informazioni generali

Riferimento:
1061
Contratto:
acquisto
Proprietà:
appartamento
ascensore:
no
solo per residenti:
no
Prezzo di acquisto:
640.000,00 €

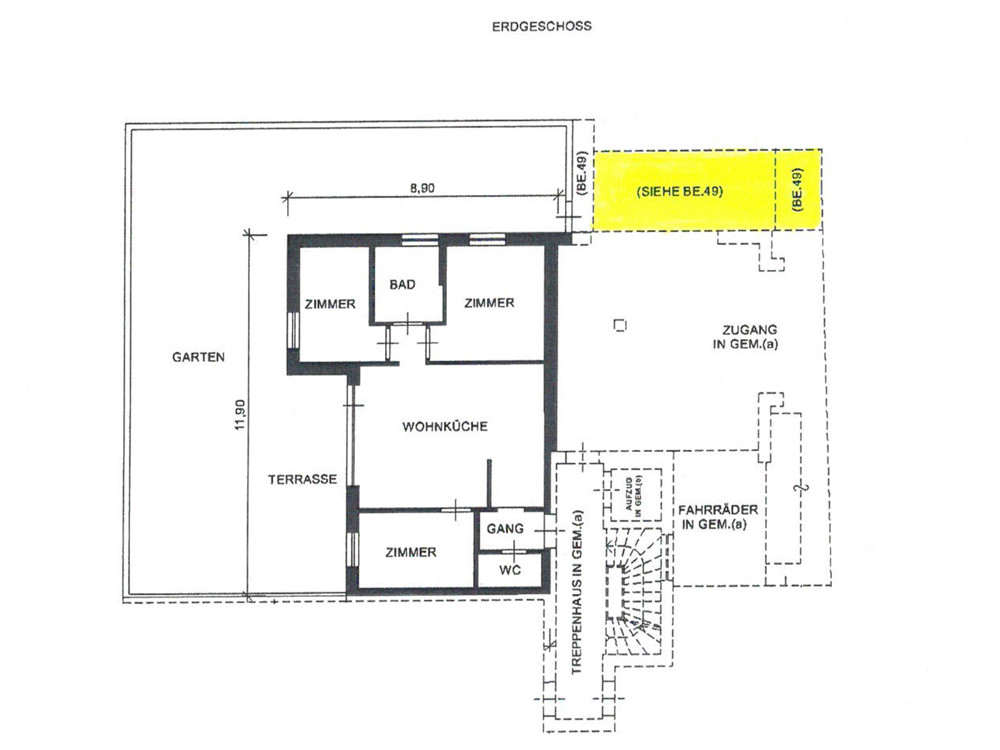
Superfici e caratteristiche

Superficie abitabile:
70,70 m²
Superficie giardino:
100,00 m²
Superficie cantina:
6,36 m²
Camere da letto:
3
Bagni:
2
WC separati:
1
Terrazze:
1
Posti auto:
1
Descrizione:
QUADRILOCALE a Bressanone - Residence Erna

PARTICOLARITÀ: Splendido QUADRILOCALE seminuovo al piano terra, con ampio giardino privato, box garage e ulteriore posto auto di proprietà e cantina incluso, parzialmente arredato
CONSISTENZA: esecuzione casaclima A+, anno di costruzione: 2022 disimpegno, 3 camere da letto, cucina-soggiorno/ open-space con zona pranzo, doppi servizi, ampia terrazza a sud, con giardino privato
PLUS: Ambienti luminosi, posizione tranquilla con rapido accesso al centro città, alle strutture ricreative e ai negozi/discounter, scuole ospedale;
box garage (19,57 mq); posto auto assegnato (17,42 mq),
Posizione:
La proprietà si trova in una tranquilla e soleggiata zona residenziale in Via Thalhofgraben, a pochi minuti dal centro di Bressanone. La posizione centrale offre una splendida vista sulle montagne circostanti e ottimi collegamenti con negozi, scuole e trasporti pubblici. Perfetto per chi apprezza una vita confortevole con le migliori infrastrutture.

Persona di contatto

Agenzia:
Immobilpoint
Nome:
Thomas Baumann 
Via:
Hartwiggasse 9
Luogo:
39042 Brixen
Telefono:
00390472834380
Mail:
thomas.baumann@immobilpoint.com
Website:
www.immobilpoint.com
Kontaktperson
Contatta l'agente