Seminuovo HOTEL a pochi passi dalle piste da ski e sentieri di relax della Val Pusteria

VandoiesVandoies
1.700.000 €

informazioni generali

Riferimento:
1027
Contratto:
acquisto
Proprietà:
Ricettività (Hotel)
ascensore:
no
arredato:
completamente
Prezzo di acquisto:
1.700.000,00 €

Superfici e caratteristiche

Superficie balconi/terrazze:
25,00 m²
Superficie giardino:
453,00 m²
Balconi:
2
Terrazze:
2

Efficenza energetica

anno di costruzione:
2006
Riscaldamento:
riscaldamento a pavimento
Descrizione:
Seminuovo HOTEL a pochi passi dalle piste da ski e sentieri di relax della Val Pusteria

PARTICOLARITÀ: Proponiamo la vendita di uno splendido Hotel seminuovo, immerso in una natura
intatta; adatto per chi vuole uscire dallo stress quotidiano e trovare il
meritato relax; in Val Pusteria.
L’immobile è stato costruito nel 2006, classe energetica "Casa-Clima A",
e dispone di 4 piani, con la capacità
produttiva attuale di 38 letti.
L’hotel dista pochi minuti dal comprensorio turistico invernale Rio
Pusteria, e dispone di 14 camere per ospiti, 1 appartemento + 1
appartamento per il personale.
CONSISTENZA: cantine, 1 camera per elaborazione
biancheria, 1 camera per l’impianto di riscaldamento;
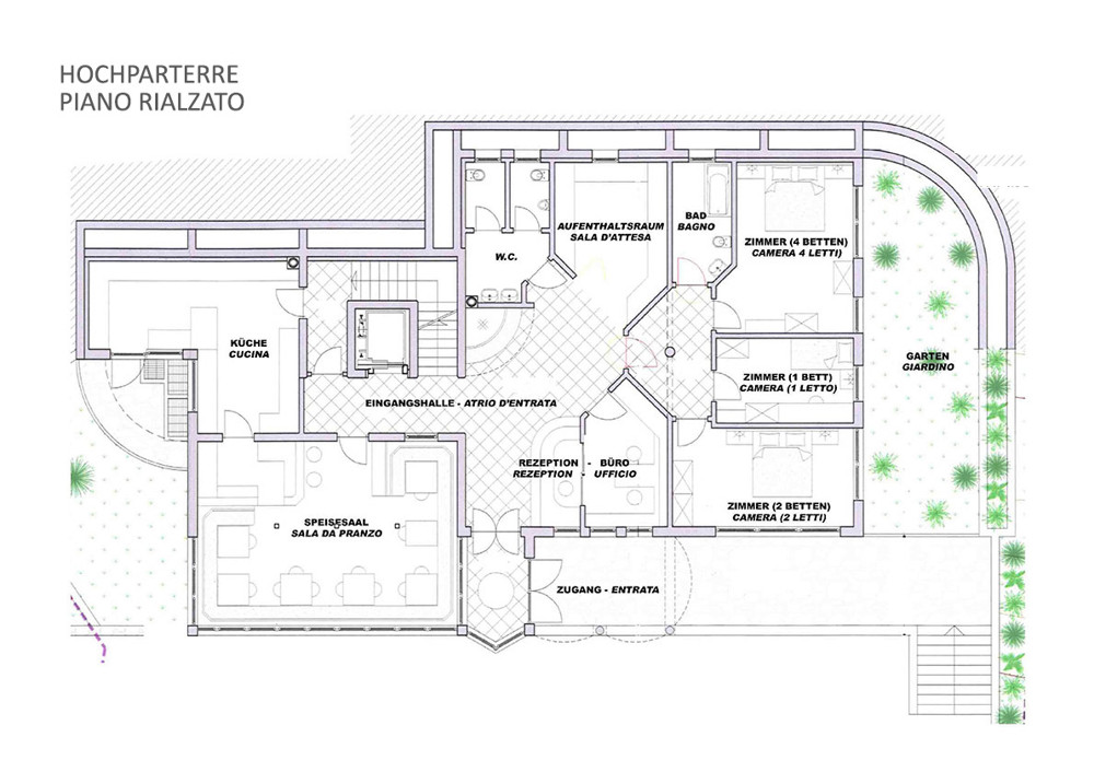
piano rialzato: rezeption, ufficio, sala pranzo, cucina, camera con spazio
relax, WC., 3 camere da letto, per un totale di 7 posti letto, bagno e
ascensore;
PREGI: Un progetto di ampliamento approvato è a disposizione con una capacità ampliabile a complessivi 50 posti letto.
Posizione:
Questo hotel in vendita si trova all'ingresso del villaggio Vallelarga, all'ingresso della Val Pusteria.
Fra breve sarà realizzato un ulteriore impianto di risalita nelle immediate vicinanze della proprietà, già inserito nel piano delle piste da sci. Ulteriore potenziale con maggiore frequenza e prospettive ancora migliori.

Persona di contatto

Agenzia:
Immobilpoint
Nome:
Thomas Baumann 
Via:
Hartwiggasse 9
Luogo:
39042 Brixen
Telefono:
00390472834380
Mail:
thomas.baumann@immobilpoint.com
Website:
www.immobilpoint.com
Kontaktperson
Contatta l'agente