Quadrilocale spazioso con terrazza (D)

DobbiacoDobbiaco
Su richiesta

informazioni generali

Riferimento:
5152
Contratto:
acquisto
Proprietà:
appartamento
Piano:
1
Totale piani:
1
ascensore:
solo per residenti:
no
Spese condominiali al mese:
160,00 €
Provvigione più IVA:
3%

Superfici e caratteristiche

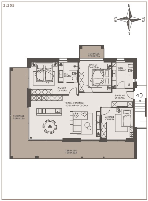
Superficie abitabile:
100,00 m²
Superficie balconi/terrazze:
51,00 m²
Superficie cantina:
13,00 m²
Superficie di vendita:
154,00 m²
Stanze:
4
Camere da letto:
3
Bagni:
2
Terrazze:
2
Posti auto:
1

Efficenza energetica

anno di costruzione:
2025
stato dell'immobile:
nuovo
fonte di energia:
teleriscaldamento
Riscaldamento:
riscaldamento a pavimento
classe energetica:
A+
Descrizione:
Benvenuti nella vostra nuova casa! Questo elegante appartamento nel comune di Dobbiaco offre la perfetta combinazione di comfort moderno e praticità.

L'appartamento si trova al primo piano di un nuovo progetto edilizio ed è composto da un ingresso, un soggiorno con angolo cottura, tre camere da letto, due bagni, un'ampia terrazza sul lato sud-ovest e un balcone. Una cantina offre ulteriore spazio di archiviazione. I garage possono essere acquistati con un costo aggiuntivo di 35.000 euro + IVA.

Non perdete l'occasione di fare di questo incantevole e lussuoso appartamento la vostra casa. Non solo acquistate un immobile di prima classe, ma anche un pezzo di qualità della vita nella pittoresca Dobbiaco.

L'appartamento è libero, non convenzionale, e può quindi essere utilizzato anche come seconda casa o casa per le vacanze.
Posizione:
DOBBIACO
Le viuzze ed i vicoli di Dobbiaco sono testimoni eloquenti della storia e della tradizione locali. Un tempo conosciuto soprattutto come luogo di cura (per la sua aria pura) tra gli aristocratici, nel corso del tempo Dobbiaco è divenuto uno dei centri turistici più amati dell'alta Val Pusteria. Il suo straordinario paesaggio - sul quale si alternano, in struggente armonia, prati rigogliosi e fitti boschi sovrastati dalle imponenti vette dolomitiche -, conferisce fascino ulteriore a quella che è già di per sé una somma di ricchezze irresistibili della località. Grazie alla sua fortunata ubiacazione, Dobbiaco è considerato anche la "porta delle Dolomiti". Le tre Cime di Lavaredo, di fama mondiale, oltre ad essere il simbolo per eccellenza delle Dolomiti, garantiscono esperienze indimenticabili agli amanti delle montagne. Laghi alpini dall'acqua cristallina, come il lago di Dobbiaco e quello di Landro, coronano il meraviglioso quadro panoramico, ed i parchi nazionali "Dolomiti di Sesto" e "Fanes Sennes Braies" sono direttamente confinanti col comune di Dobbiaco.

Persona di contatto

Agenzia:
Immobilien Niederkofler GmbH
Nome:
André Benedict Niederkofler 
Via:
Galileo Galilei 6
Luogo:
39031 Bruneck
Telefono:
00390474410400
Mail:
info@immobil-niederkofler.it
Website:
www.immobil-niederkofler.it
Contatta l'agente