Progetto per una palazzina di appartamenti

PlanPlan
650.000 €

informazioni generali

Riferimento:
RM684
Contratto:
acquisto
Proprietà:
Ricettività (Hotel)
ascensore:
solo per residenti:
no
Prezzo di acquisto:
650.000,00 €
Provvigione più IVA:
3%

Superfici e caratteristiche

Superficie totale:
1.396,00 m²

Efficenza energetica

classe energetica:
A
Descrizione:
In alto, sopra la vita quotidiana, nel pittoresco paesino di Plan (Pfelders) e a due passi dall’area sciistica, nasce un esclusivo progetto di nuova costruzione con sei appartamenti di alta qualità destinati all’affitto turistico. Questo concept unisce l’eleganza alpina all’architettura moderna – un luogo dove relax e rendimento vanno di pari passo.
È previsto un insieme ben studiato con un’ampia area wellness che offre agli ospiti puro relax dopo una giornata attiva in montagna. Il garage sotterraneo interno garantisce il massimo comfort e una protezione completa da vento e intemperie tutto l’anno. Che si tratti di divertimento invernale direttamente sulle piste o di avventure estive in montagna – questa posizione affascina tanto gli intenditori quanto gli amanti della natura.
Grazie all’immediata possibilità di avviare i lavori e alla destinazione turistica dell’immobile, si presenta qui un’occasione rara per investitori che puntano su qualità, posizione e potenziale turistico.


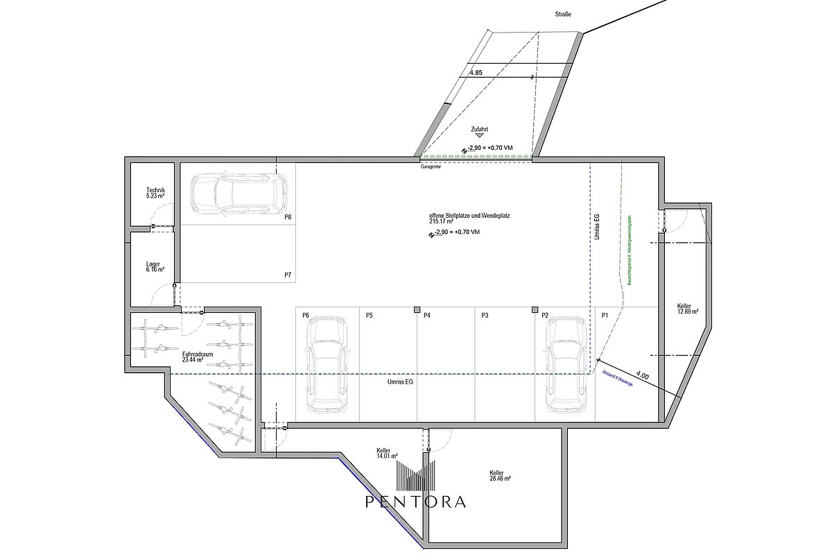
Volume edificabile: ca. 1396 m³
Superficie terreno: ca. 535 m²
Piano: -1 a 2
Esposizione: 360 gradi
Terrazza: si
Giardino: si
Cantina: si
Ascensore: si
Garage: si
Riscaldamento: a richiesta
Convenzionato: no

Sul nostro sito web troverete ulteriori informazioni, come ad esempio un tour a 360° appositamente creato. Oppure fatevelo spedire facendo una richiesta diretta tramite questo portale.

Tutti i dati riportati sono indicativi.

Per ulteriori informazioni o un sopraluogo informativo siamo a Vostra disposizione.
IMMO MAYER vGmbH | srls | Romstraße | via Roma 102 | 39012 Meran | o | +39 0473 421778 | info@immo-mayer.com | www.immo-mayer.com

Persona di contatto

Agenzia:
IMMO MAYER
Nome:
Mati Mayer 
Via:
Romstraße | Via Roma 102
Luogo:
39012 Meran | o
Telefono:
00390473421778
Mail:
info@immo-mayer.com
Website:
www.immo-mayer.com/
Contatta l'agente

documenti