Ottimo investimento in posizione strategica!

LanaLana
Su richiesta

informazioni generali

Riferimento:
0477
Contratto:
acquisto
Proprietà:
Casa
ascensore:
no
solo per residenti:
no

Superfici e caratteristiche

Superficie abitabile:
670,00 m²
Superficie balconi/terrazze:
160,00 m²
Superficie di vendita:
800,00 m²
Superficie del terreno:
1.415,00 m²
Stanze:
8
Camere da letto:
6
Bagni:
4
Balconi:
3
Terrazze:
1
Loggie:
2
Posti auto:
2

Efficenza energetica

anno di costruzione:
1984
fonte di energia:
gas
classe energetica:
G
Descrizione:
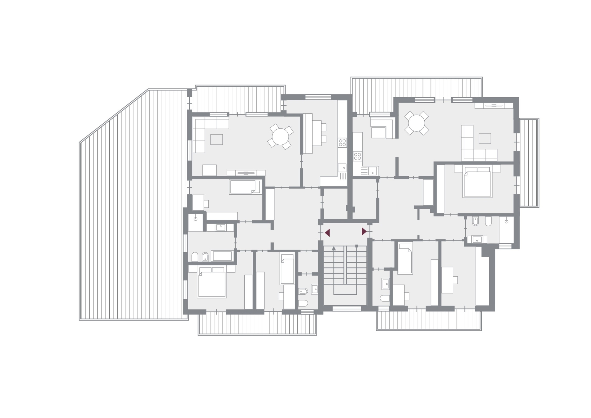
Questo immobile versatile si distingue per gli ampi spazi e le molteplici possibilità d’utilizzo. Al piano terra si trova un grande laboratorio con locali di vendita adiacenti – ideale come magazzino, officina o per attività commerciali – per una superficie complessiva di oltre 350 m². Al piano superiore si trovano due appartamenti molto spaziosi di circa 135 m² ciascuno, uno dei quali con una terrazza soleggiata esposta a sud-ovest. Il vasto sottotetto offre ulteriori possibilità di ampliamento, aggiungendo valore e potenziale all’immobile. Completano la proprietà un garage doppio e ampi spazi di manovra. Una proposta di grande interesse, perfetta per investitori, imprenditori o privati alla ricerca di un immobile con prospettiva.
Tutte le informazioni fornite sono da considerarsi indicative e soggette a modifiche.

Persona di contatto

Agenzia:
Arquin Real Estate
Nome:
Dr. Philipp Arquin 
Via:
Sparkassenstraße 23
Luogo:
39012 Meran
Telefono:
00390473235300
Fax:
00390473235372
Mail:
pa@arquin.it
Website:
www.arquin.it
Contatta l'agente