Nuovo trilocale con tre balconi- 16

Bolzanocentro città
780.000 €

informazioni generali

Riferimento:
5145
Contratto:
acquisto
Proprietà:
appartamento
Piano:
4
Totale piani:
4
ascensore:
solo per residenti:
no
Prezzo di acquisto:
780.000,00 €
Spese condominiali al mese:
150,00 €
Provvigione più IVA:
3%

Superfici e caratteristiche

Superficie abitabile:
68,15 m²
Superficie balconi/terrazze:
55,10 m²
Superficie cantina:
5,00 m²
Superficie di vendita:
118,00 m²
Stanze:
3
Camere da letto:
2
Bagni:
2
Balconi:
3
Posti auto:
1

Efficenza energetica

anno di costruzione:
2025
stato dell'immobile:
nuovo
fonte di energia:
gas pompa di calore aria
Riscaldamento:
riscaldamento a pavimento
classe energetica:
A+
consumo di energia:
30.00 kWh/(m²*a)
Descrizione:
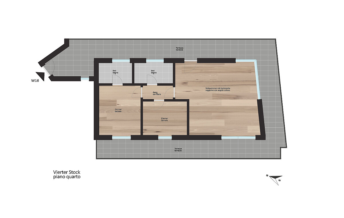
Questo trilocale al 4° piano dispone di un accogliente soggiorno con angolo cottura, due camere da letto e di due bagni moderni. I tre balconi invitano a godersi la vista e momenti di relax.

Questo nuovo edificio punta sulla sostenibilità e sulla tecnologia, allo stesso tempo stupisce per il suo design architettonico unico.

La costruzione utilizzerà materiali di alta qualità e garantirà un elevato standard di benessere abitativo. L'immobile sarà dotato di un sistema di riscaldamento ibrido, composto da una pompa di calore e una caldaia a condensazione a metano di piccole dimensioni. Il sistema consentirà la regolazione individuale della temperatura per ogni locale, o gruppo di locali, assicurando il massimo comfort. Inoltre, sarà installato un sistema di ventilazione e sarà predisposto l'impianto per la climatizzazione.

L’impianto fotovoltaico garantirà il funzionamento della pompa di calore e l’eventuale eccedenza verrà impiegata per il funzionamento degli impianti comuni ( ascensore, illuminazione etc.).

L'edificio sarà costruito secondo lo standard Casaclima "A - Nature".

La cantina è inclusa nel prezzo e il box auto può essere acquistato separatamente.

Consegna degli appartamenti: Fine 2025.
Posizione:
Nel cuore di Bolzano, a due passi dal Teatro ed in prossimità di Piazza Walther, del Duomo e della stazione ferroviaria nasce questo nuovo progetto con soli 17 appartamenti, cantine e garage.

Sono disponibili appartamenti trilocali e quadrilocali adatti alle famiglie e piccoli monolocali come investimento. Il nuovo edificio è composto da spazi abitativi luminosi con ampie terrazze o balconi ed è suddiviso in appartamenti di diverse dimensioni.

Persona di contatto

Agenzia:
Immobilien Niederkofler Bozen/Gardasee
Nome:
Dr. Octavia Niederkofler 
Via:
Südtirolerstraße 30
Luogo:
39100 Bozen
Telefono:
00393406814487
Mail:
octavia@immobil-niederkofler.it
Kontaktperson
Contatta l'agente