Nuovo appartamento 3 locali con balcone sud

Naturnocentro paese
455.000 €

informazioni generali

Riferimento:
ME13448_3
Contratto:
acquisto
Proprietà:
appartamento
Piano:
2
Totale piani:
2
ascensore:
solo per residenti:
no
Prezzo di acquisto:
455.000,00 €
Provvigione più IVA:
3%

Superfici e caratteristiche

Superficie abitabile:
81,00 m²
Superficie balconi/terrazze:
29,00 m²
Superficie di vendita:
122,00 m²
Stanze:
3
Camere da letto:
2
Bagni:
1
Balconi:
2

Efficenza energetica

anno di costruzione:
2023
fonte di energia:
gas
Riscaldamento:
riscaldamento a pavimento
classe energetica:
B
Descrizione:
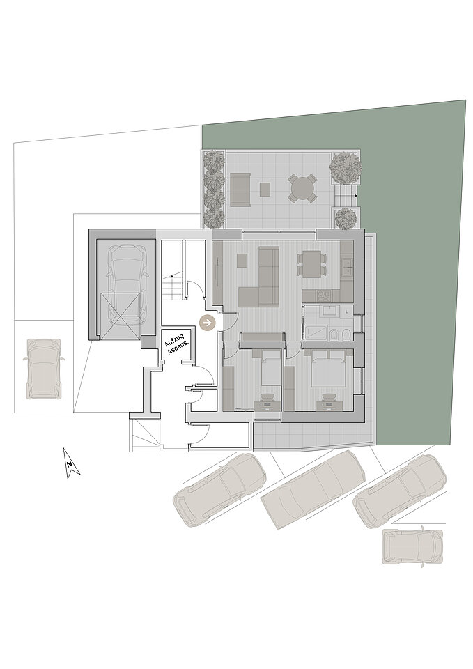
A Naturno proponiamo in vendita un bellissimo progetto di nuova costruzione con solo 4 unità abitative. L'edificio si trova nelle immediate vicinanze del centro del paese, ma in una posizione molto tranquilla e riservata. L'edificio si sviluppa su 4 piani fuori terra. Il raffinato progetto propone uno stile moderno, ma allo stesso tempo si integra perfettamente nel paesaggio grazie ai materiali scelti con cura e ai colori locali. L'appartamento si trova al secondo piano e al interno si compone da cucina/soggiorno, il quale da direttamente sul balcone, un bagno grande e due camere matrimoniali, che si dividono un grande balcone. Le ampie vetrate illuminano il soggiorno e tutto l'appartamento. Un posto macchina si può acquistare per 25.000,00€.

Persona di contatto

Agenzia:
Castellanum RE Srl
Nome:
Castellanum Meran - Merano 
Via:
Via Portici 37
Luogo:
39012 Merano
Telefono:
00390473055344
Mail:
meran@castellanum.it
Website:
www.castellanum.it
Contatta l'agente