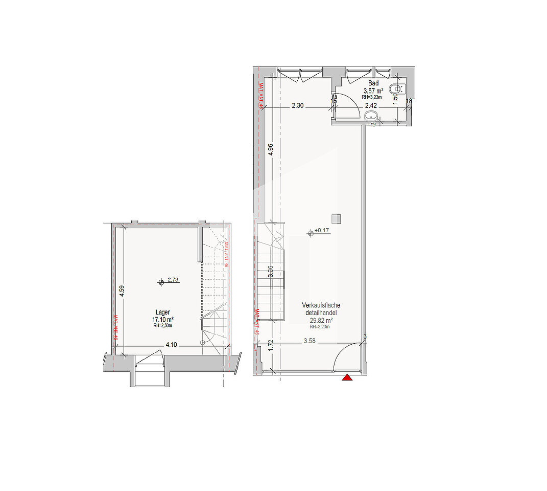
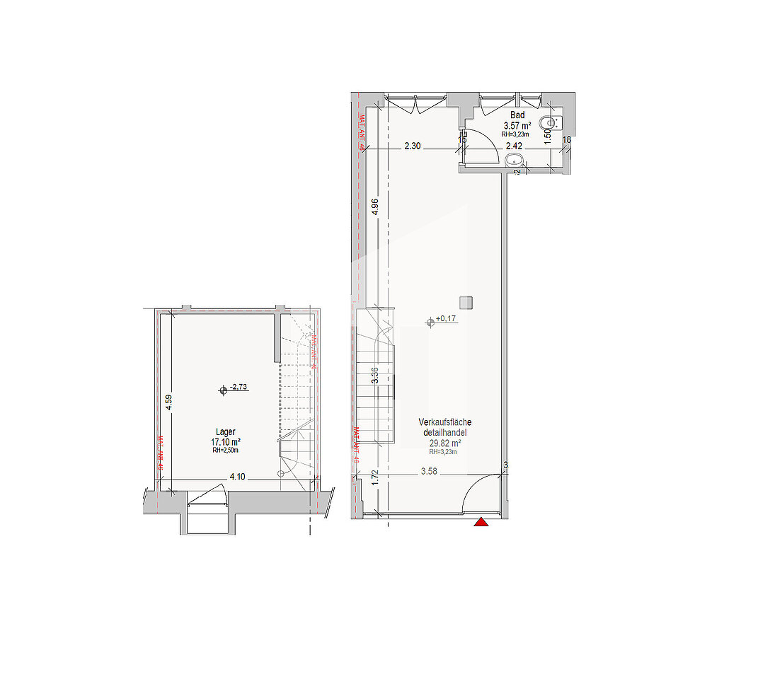
Negozio con magazino in affitto

BolzanoBolzano
Su richiesta

informazioni generali

Riferimento:
HM 020-2
Contratto:
affitto
Proprietà:
Uffici / Studi professionali
ascensore:
no
Prezzo di acquisto:
650,00 €

Superfici e caratteristiche

Superficie abitabile:
50,00 m²
Superficie cantina:
1,00 m²
Superficie di magazzino:
1,00 m²
Superficie totale:
50,00 m²
Stanze:
2
WC separati:
1

Efficenza energetica

stato dell'immobile:
completamente ristrutturato
fonte di energia:
gas
Riscaldamento:
riscaldamento centralizzato
classe energetica:
Legge90G
Descrizione:

Locale commerciale risanato in affitto a Bolzano. Situato al piano terra, l'immobile offre ampi spazi e un'ottima visibilità. Ideale per attività commerciali o liberi professionisti. Zona strategica e ben servita, vicino a negozi, uffici e mezzi pubblici. Ottima opportunità per chi desidera avviare un'attività in una delle città più dinamiche e vivaci dell'Alto Adige. Contattaci per maggiori informazioni e per organizzare una visita.



(Ref. HM 020-2)
Contatta l'agente