Klausen 2Zi Wohnung Langrain

Chiusacentro città
Su richiesta

informazioni generali

Riferimento:
24_06
Contratto:
acquisto
Proprietà:
appartamento
ascensore:
no
solo per residenti:
no
affitto netto:
1,00 €
affitto comprensivo di utenze:
1,00 €

Superfici e caratteristiche

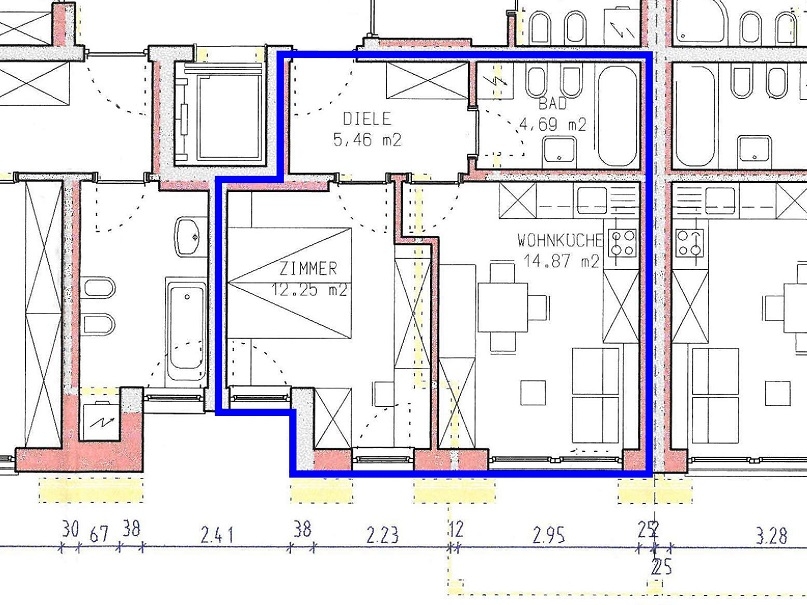
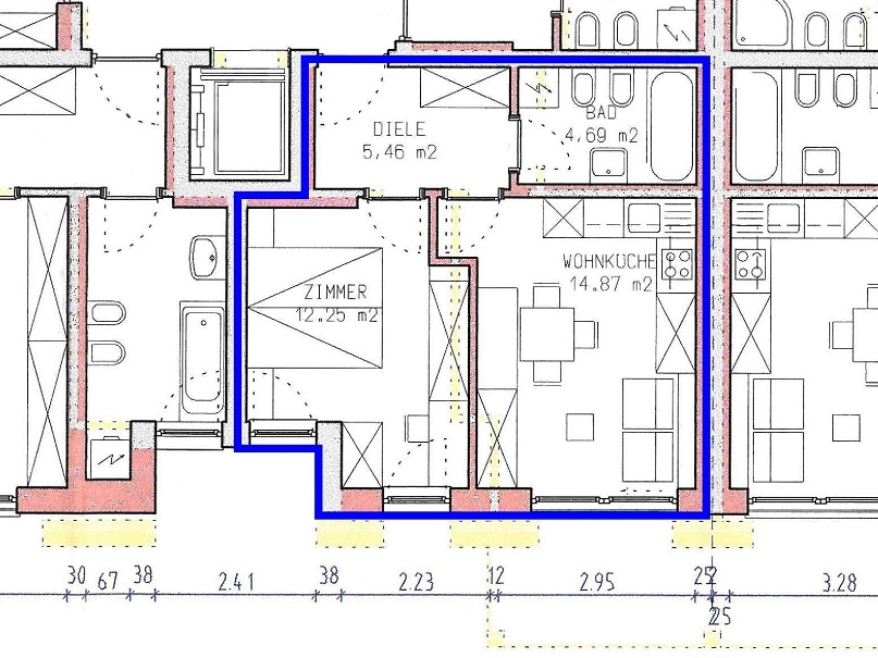
Superficie abitabile:
37,27 m²
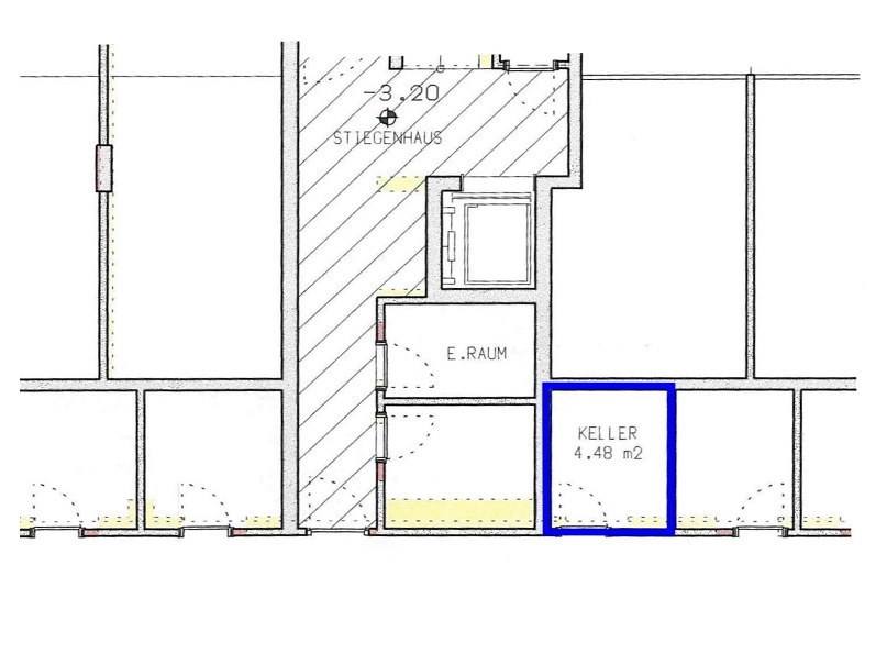
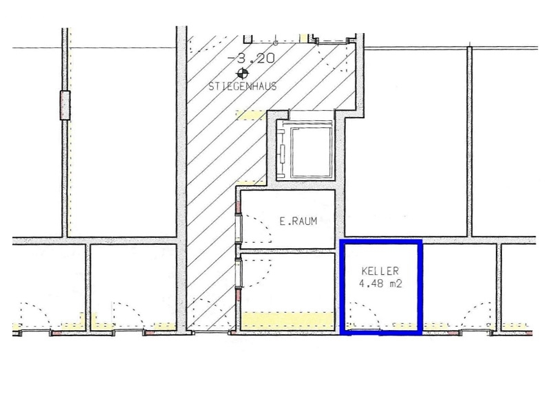
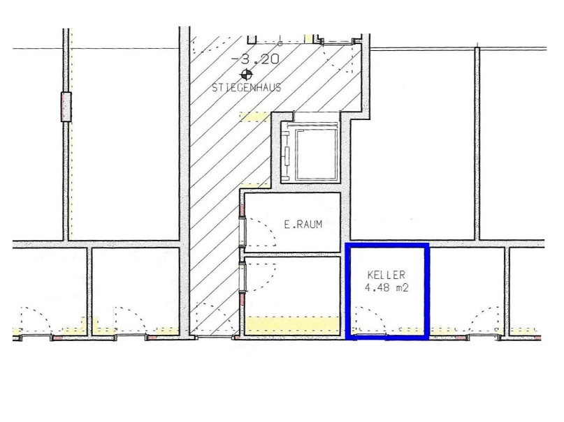
Superficie cantina:
4,48 m²
Stanze:
2
Camere da letto:
1
Bagni:
1

Efficenza energetica

stato dell'immobile:
ristrutturazione parziale/totale richiesta
Descrizione:
In vendita un bilocale affittato composto da un'invitante zona d'ingresso, un bagno, un'accogliente camera da letto e una cucina/soggiorno a pianta aperta con balcone alla francese. L'appartamento si trova al primo piano di un moderno condominio dotato di teleriscaldamento e ascensore. Al piano interrato si trova anche una cantina. L'appartamento non è convenzionato e ha la classe energetica B.

Proposta salvo errore e disponibilità. Tutte le informazioni, in particolare quelle di superfici, dimensioni e prezzi senza garanzia.

Persona di contatto

Agenzia:
dorfmann immobilien
Nome:
Norbert DORFMANN 
Via:
Tinneplatz 15
Luogo:
39043 Klausen / Chiusa
Telefono:
00393356526421
Mail:
info@dorfmann.biz
Contatta l'agente