Investimento: Bilocale ristrutturato con balcone

Campo TuresCampo Tures
260.000 €

informazioni generali

Riferimento:
512
Contratto:
acquisto
Proprietà:
appartamento
Piano:
1
Totale piani:
1
ascensore:
no
solo per residenti:
no
Prezzo di acquisto:
260.000,00 €
Provvigione più IVA:
3%

Superfici e caratteristiche

Superficie abitabile:
38,60 m²
Superficie balconi/terrazze:
10,44 m²
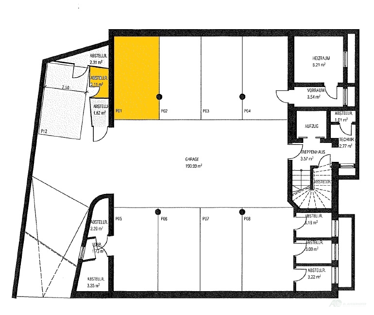
Superficie cantina:
2,11 m²
Superficie di vendita:
66,00 m²
Stanze:
2
Camere da letto:
1
Bagni:
2
Balconi:
1

Efficenza energetica

anno di costruzione:
2000
stato dell'immobile:
ristrutturato parzialmente/totale
fonte di energia:
gas
Riscaldamento:
riscaldamento a pavimento
classe energetica:
B
Descrizione:
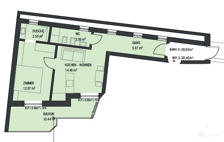
Bilocale ristrutturato a Campo Tures, all´inizio del paese, al 1° piano, composto da un ingresso, soggiorno con angolo cottura, una camera da letto, due bagni, un balcone, un locale cantina e un posto auto in garage.
L'appartamento è dotato di riscaldamento a pavimento e a parete e di un nuovo sistema di ventilazione degli ambienti.
L'appartamento non è convenzionato e può essere utilizzato anche come casa vacanze.

Persona di contatto

Agenzia:
Immo di/des Ausserhofer Dr. Karlheinz
Nome:
Immobilien Dr. Ausserhofer 
Via:
Europastraße 15
Luogo:
39031 Bruneck
Telefono:
00390474554666
Fax:
00390474554359
Mail:
info@ausserhofer.immo
Website:
www.ausserhofer.immo
Contatta l'agente