Gewerbehalle in der Handwerkerzone

Varnazona industriale
890.000 €

informazioni generali

Riferimento:
BX13783
Contratto:
acquisto
Proprietà:
Magazzino (Magazzino)
Piano:
1
Totale piani:
1
ascensore:
no
Prezzo di acquisto:
890.000,00 €

Superfici e caratteristiche

Superficie utile:
375,00 m²
Superficie di vendita:
402,00 m²
WC separati:
1

Efficenza energetica

classe energetica:
D
Descrizione:
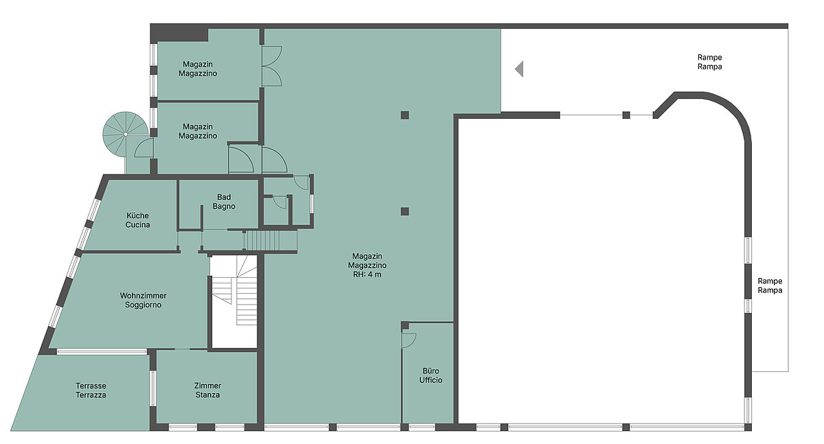
A Varna, a nord di Bressanone e direttamente sulla strada principale, proponiamo in vendita un capannone con alloggio di servizio. L‘immobile comprende un capannone al piano superiore con un‘altezza dei locali di circa 4 m, un ufficio con servizi igienici e un ampio alloggio di servizio. Per l‘appartamento esiste già un progetto approvato per una terrazza di circa 20 m². Il magazzino è accessibile tramite una rampa, l‘alloggio di servizio tramite una scala. È inoltre possibile collegare il magazzino e l‘appartamento.

Persona di contatto

Agenzia:
Castellanum Srl
Nome:
Castellanum Brixen - Bressanone 
Via:
Via Tratten 7
Luogo:
39042 Bressanone
Telefono:
00390472201250
Fax:
00390472201242
Mail:
brixen@castellanum.it
Website:
www.castellanum.it
Kontaktperson
Contatta l'agente