Elegante quadrilocale all'ultimo piano

MeranoMerano
475.000 €

informazioni generali

Riferimento:
F2611
Contratto:
acquisto
Proprietà:
appartamento
Piano:
6
Totale piani:
6
ascensore:
solo per residenti:
no
Prezzo di acquisto:
475.000,00 €

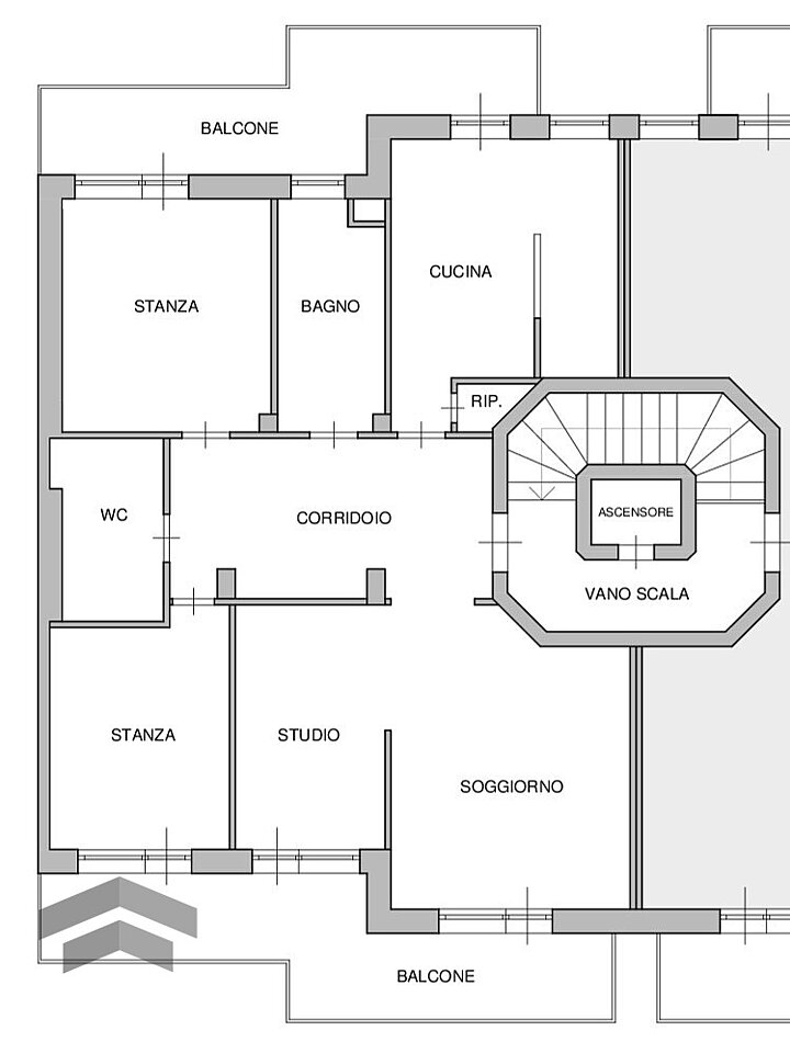
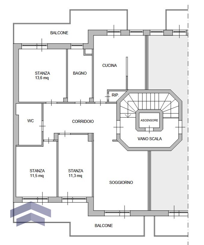
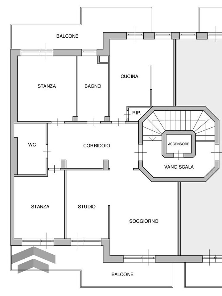
Superfici e caratteristiche

Superficie abitabile:
99,00 m²
Superficie cantina:
1,00 m²
Superficie totale:
140,00 m²
Stanze:
3
Bagni:
2
Balconi:
1

Efficenza energetica

anno di costruzione:
1976
stato dell'immobile:
curato
fonte di energia:
teleriscaldamento
Riscaldamento:
riscaldamento centralizzato
classe energetica:
Legge90G
Descrizione:

Questo spazioso e molto curato appartamento di tre/quattro locali a Maia Bassa, in piazza San Vigilio, all'ultimo piano, con soleggiata vista panoramica a 360 gradi, è una vera occasione da non perdere.

La vicinanza immediata a un grande centro commerciale, l'ottimo collegamento con il centro città e la generosa distribuzione degli spazi rendono questo appartamento un rifugio per giovani e meno giovani.   

Per quanto riguarda la manutenzione, nel 2003 è stato ristrutturato il tetto, nel 2007 l'impianto di riscaldamento è stato convertito al teleriscaldamento e nel 2018 è stato rinnovato il bagno con le relative tubature dell'acqua. Inoltre, l'impianto di climatizzazione garantisce un piacevole comfort abitativo nelle giornate calde.

Naturalmente l'appartamento è comodamente raggiungibile con un ascensore e una cantina annessa offre ulteriore spazio di stoccaggio. Se necessario, sono disponibili separatamente (Euro 28.000/50.000) un o due garage in vendita.

 

Maggiori informazioni direttamente in agenzia.

 



(Ref. F2611)
Contatta l'agente