Curon/San Valentino: immobile commerciale con appartamento aziendale in vendita

San Valentino alla MutaSan Valentino alla Muta
Su richiesta

informazioni generali

Riferimento:
360
Contratto:
acquisto
Proprietà:
Magazzino (Capannone)
ascensore:
no
Provvigione più IVA:
3% + MwSt.

Superfici e caratteristiche

Superficie del terreno:
1.271,00 m²

Efficenza energetica

anno di costruzione:
2004
fonte di energia:
teleriscaldamento
Descrizione:
Un immobile commerciale con appartamento aziendale è in vendita a San Valentino, una frazione del comune di Curon. L'immobile si trova nella zona artigianale, adiacente alla strada principale e quindi in una posizione centrale con buoni collegamenti e buona visibilità. Attualmente è utilizzato come showroom.

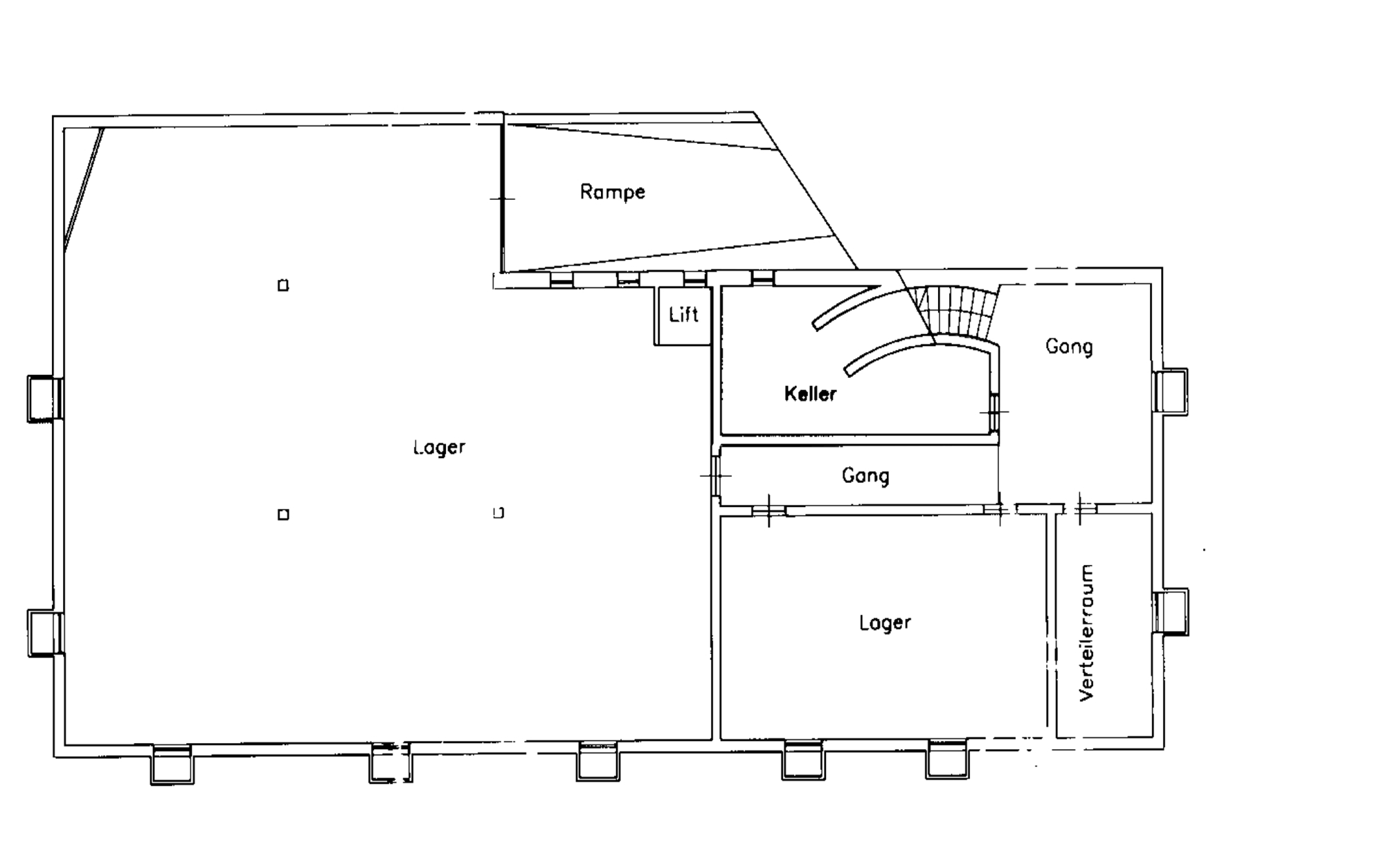
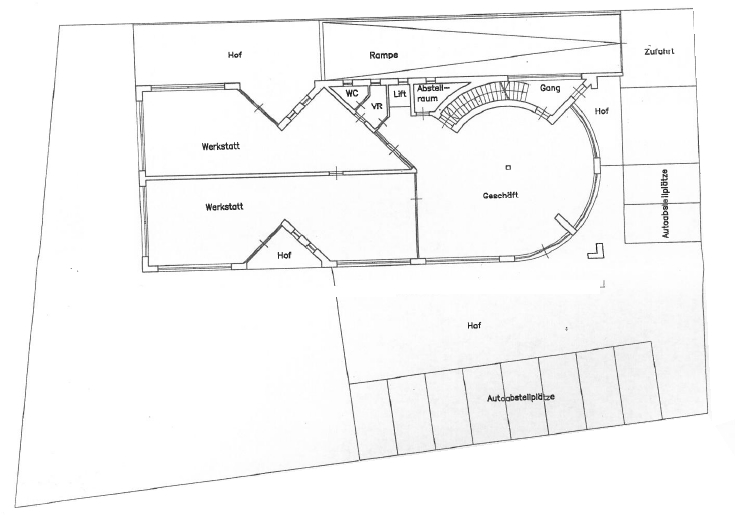
La proprietà si estende su 3 piani ed è suddivisa come segue:

Piano interrato:
- Garage con circa 240 m²
- locali cantina

Piano terra:
- Showroom / area vendite
- Sala riunioni
- Uffici
- Servizi igienici
- 15 posti auto
- Cortile

1° piano:
- Uffici
- WC

Al 1° piano si trova anche un appartamento aziendale di circa 90 m².
Questo trilocale è composto da 2 camere da letto, cucina, soggiorno, bagno e toilette diurna, oltre a un ingresso e a un'ampia terrazza di circa 65 m².

L'edificio residenziale è riscaldato dal teleriscaldamento con radiatori.

Persona di contatto

Agenzia:
Wellenzohn Immobilien des Wellenzohn Bernhard & Co. KG
Via:
Göflanerstrasse 33
Luogo:
39028 Schlanders
Telefono:
00390473620300
Mail:
info@wellenzohn.eu
Website:
www.wellenzohn.eu
Contatta l'agente