Casa con 3 unità a Gargazzone

GargazzoneGargazzone
930.000 €

informazioni generali

Riferimento:
RM603
Contratto:
acquisto
Proprietà:
Casa
ascensore:
no
solo per residenti:
no
Prezzo di acquisto:
930.000,00 €
Provvigione più IVA:
3% vom Kaufpreis

Superfici e caratteristiche

Superficie abitabile:
173,00 m²
Superficie giardino:
51,00 m²
Superficie totale:
290,00 m²
Stanze:
7
Camere da letto:
4
Bagni:
3
WC separati:
1

Efficenza energetica

anno di costruzione:
1967
fonte di energia:
olio
Riscaldamento:
riscaldamento centralizzato
Descrizione:
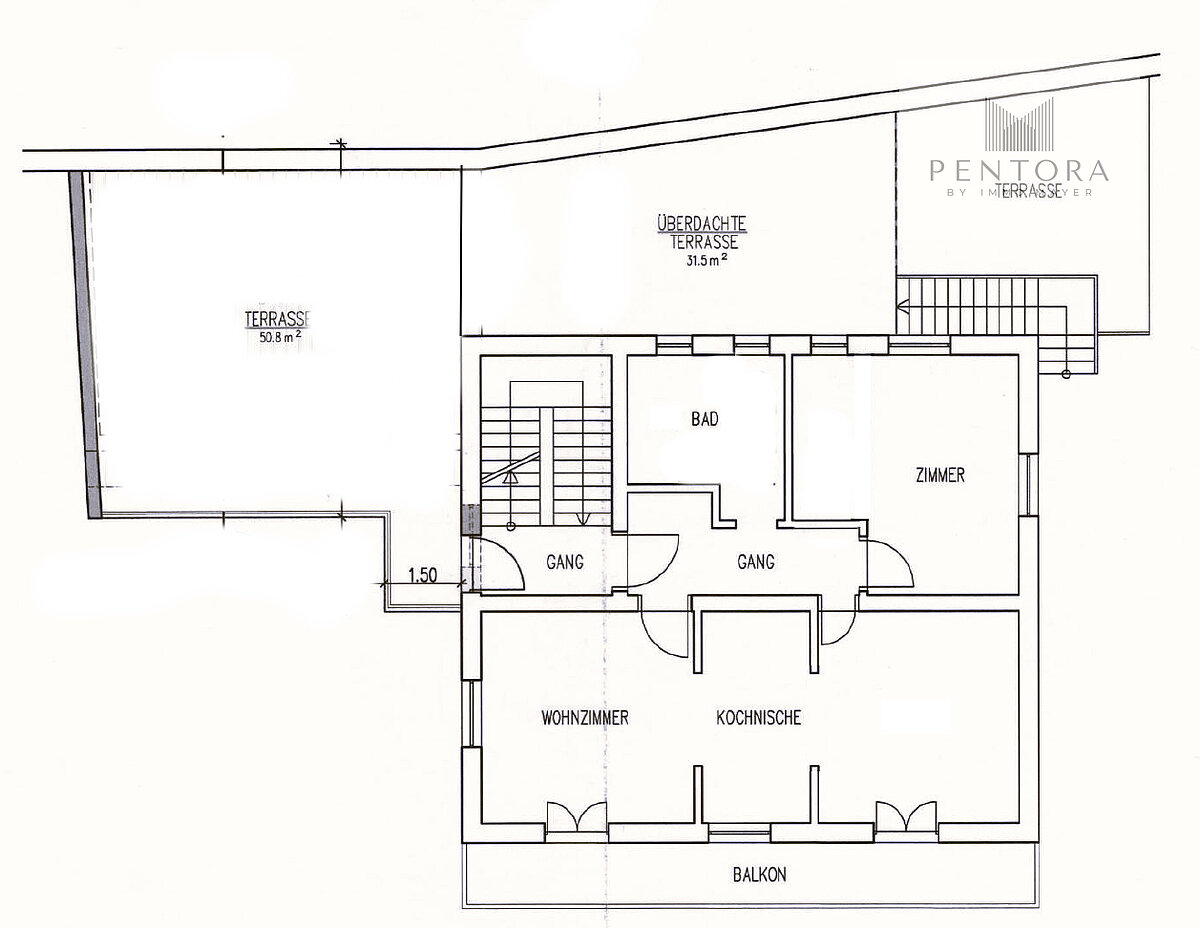
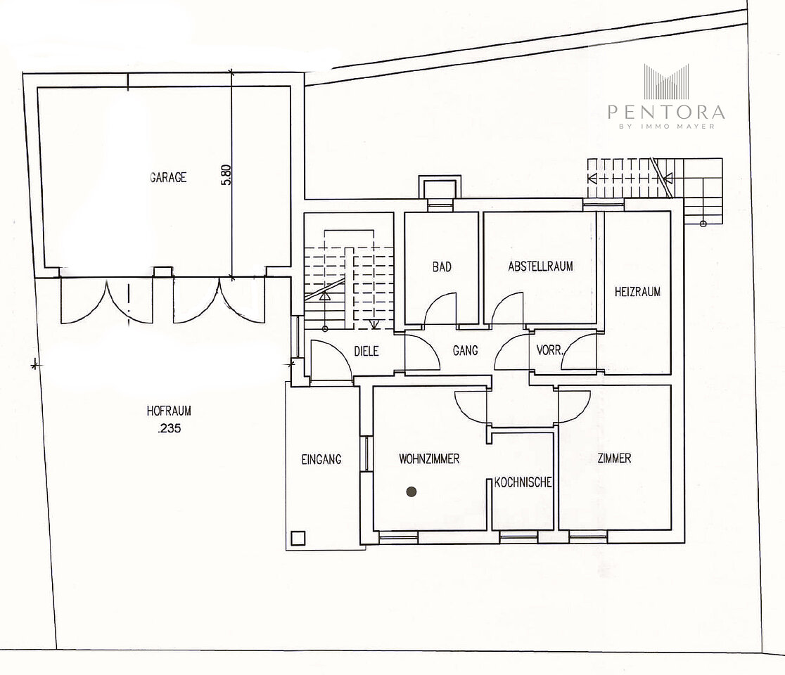
In posizione collinare soleggiata e tranquilla, alla fine di una strada senza uscita a Gargazzone, questa casa offre spazio per idee e creatività. Attualmente suddivisa in tre unità abitative, presenta un grande potenziale di ristrutturazione: l’unione di due appartamenti permetterebbe di creare un’ampia abitazione principale con un appartamento indipendente più piccolo. Ogni unità può disporre di superfici esterne private. Completano la proprietà un garage doppio e due posti auto antistanti. Direttamente accanto inizia il bosco, di cui una piccola parte fa parte del terreno. L’immobile è ideale per chi desidera realizzare e personalizzare la propria casa in autonomia, godendo di una posizione tranquilla, soleggiata e immersa nel verde.

Superficie commerciale: ca. 290 m²
Superficie calpestabile: ca. 173 m²
Piano: 0-3
Esposizione: nord, ovest
Balconi/ Terrazze: ca. 137 m²
Giardino: ca. 51 m²
Bosco: ca. 400 m²
Ascensore: no
Riscaldamento: riscaldamento centralizzato a gasolio
Convenzionato: no


Tutti i dati riportati sono indicativi.

Per ulteriori informazioni o un sopraluogo informativo siamo a Vostra disposizione.
IMMO MAYER vGmbH | srls | Romstraße | via Roma 102 | 39012 Meran | o | +39 0473 421778 | info@immo-mayer.com | www.immo-mayer.com

Persona di contatto

Agenzia:
IMMO Mayer
Nome:
PENTORA IMMO Mayer 
Via:
Romstraße 102
Luogo:
39012 Meran
Telefono:
00390473421778
Mail:
info@immo-mayer.com
Contatta l'agente

documenti