Brixen Wohnung 3Zi Mahr

BressanoneBressanone
Su richiesta

informazioni generali

Riferimento:
25_08
Contratto:
acquisto
Proprietà:
appartamento
ascensore:
no
solo per residenti:
no
affitto netto:
1,00 €
affitto comprensivo di utenze:
1,00 €

Superfici e caratteristiche

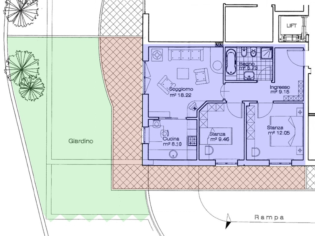
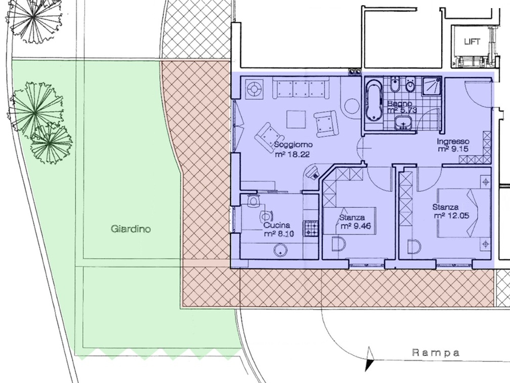
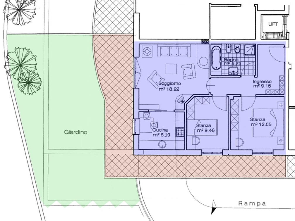
Superficie abitabile:
62,70 m²
Superficie giardino:
75,00 m²
Superficie cantina:
6,00 m²
Superficie di vendita:
100,10 m²
Stanze:
3
Camere da letto:
2
Bagni:
1

Efficenza energetica

classe energetica:
G
Descrizione:
Si vende un luminoso trilocale soleggiato al piano terra nelle vicinanze di Bressanone, facilmente raggiungibile. L'appartamento è semplice e ben strutturato ed è esposto a sud. Dispone di un ingresso, un bagno con WC, due camere da letto, una cucina e un ampio soggiorno con accesso a terrazza/balcone e un giardino al piano terra. Nel piano interrato, raggiungibile anche con l'ascensore, sono presenti anche una cantina e un garage chiuso.
L'appartamento è classificato CE-G, non è convenzionato e può essere consegnato immediatamente.

Proposta salvo errore e disponibilità. Tutte le informazioni, in particolare quelle di superfici, dimensioni e prezzi senza garanzia.

Persona di contatto

Agenzia:
dorfmann immobilien
Nome:
Norbert DORFMANN 
Via:
Tinneplatz 15
Luogo:
39043 Klausen / Chiusa
Telefono:
00393356526421
Mail:
info@dorfmann.biz
Contatta l'agente